We Will Match All Plan Sale Prices

0

Your Cart is Empty

Photographed homes may have been modified from original plan.

6931-pdf

Molina House Plan

6340 sq. ft. Total Living  |   3 Bedrooms  |  3 Full Baths
Select to Purchase
Add to Wishlist

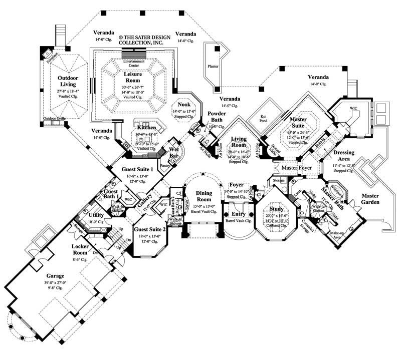
House Plan Specifications

  • Total Living:  6340 sq. ft.
  • 1st Floor:  5696 sq. ft.
  • 2nd Floor:  644 sq. ft.
  • Bedrooms:  3
  • Bathrooms:  3
  • Half Baths:  2
  • Width of House:  146 ft. 0 in.
  • Depth of House:  132 ft. 5 in.
  • Foundation:  Stem Wall Slab
  • Exterior Wall:  Block
  • Stories:  2
  • Roof Pitch:  8/12
  • Garage Bays:  3
  • Garage Load:  Side/Swing
  • Garage:  1081 sq. ft.
  • Deck:  355 sq. ft.
  • Entry:  64 sq. ft.
  • Total Area:  10584 sq. ft.
  • Building Height:  30 ft. 6 in.

House Plan Features

molina-main level floor plan #6931
molina-upper level floor plan-#6931

What is in a Set of Plans?

Find out what we include in a set of house plans.

All Plans Need Engineering

Our plans do not include engineering for any specific site. Because of the great differences in geography and climate, each state, or municipality may have its own building regulations. Your plans will likely need site specific engineering in order to comply with those local requirements, therefore, we always recommend that you have the plans reviewed by a local structural engineer for compliance.

Want to Modify This Plan?

Click here to fill out a Modification Application.

We are experiencing an extremely high volume of modifications. We are working as fast as we can, however the time frame for modifications has been extended to a minimum of 10 weeks. At this time, we cannot guarantee any special time-frames. We apologize for the inconvenience.

Plan Options can increase the time it takes to process the house plans for delivery. If you have any questions, please contact us.

{"id":4264758023,"title":"Molina House Plan","handle":"molina-colonial-revival-manor-house-plan","description":"\u003cp\u003ePicture perfect, the Molina home plan is a spectacular Colonial Revival manor home and is truly one of a kind. Design elements are evident in the facade, such as balustrades, cupolas, turrets, hipped roofs and barrel tile. These elements return the home back to Revival roots but its interior takes a decidedly contemporary turn. The Molina home plan has a contemporary Mediterranean flavor with arched entry, tiled roofs and towering accents. This home flows seamlessly from indoors to outside. There are five sets of pocketing corner-less sliding glass doors and wrap around verandas.\u003c\/p\u003e\n\u003cp\u003eThe Molina home is perfect for entertaining as well as relaxation. One is greeted by the living room with pocketing corner-less sliding doors. Adjacent is the formal dining room with domed ceiling. Bridging the formal and informal areas is a centrally located wet bar. The spacious leisure room is wrapped in glass and is enjoined by the kitchen and nook. Beyond is an outdoor living space with a fireplace and outdoor kitchen.\u003c\/p\u003e\n\u003cp\u003eThe master suite features a foyer that overlooks a private courtyard with fountain. The master bath has distinct his and hers areas with a walk-in shower and whirlpool tub that looks onto the master garden. There are two guest suites on first floor. Each guest suite has a private full bathroom and walk in closet. There is a bonus room on the second floor with a wet bar and expansive covered veranda.This would be the ideal space for a theater room or game room.\u003c\/p\u003e\n\u003cp\u003eThe spacious floor plan has 6340 square feet of living area, three bedrooms, three full bathrooms and two powder baths.\u003c\/p\u003e\n\u003cp\u003eThis house plan offers a slab\/stem wall foundation. Are you interested in having a \u003ca title=\"The Sater Group\" href=\"http:\/\/satergroup.com\" target=\"_blank\"\u003ecustom home plan\u003c\/a\u003e designed just for you? Then please visit \u003ca title=\"The Sater Group\" href=\"http:\/\/satergroup.com\" target=\"_blank\"\u003eSater Group, Inc.\u003c\/a\u003e and learn how we can design the home of your dreams.\u003c\/p\u003e","published_at":"2016-02-02T14:14:00-05:00","created_at":"2016-02-02T14:14:38-05:00","vendor":"Sater Design","type":"Home Plans","tags":["930-319","Baths_3","Bedrooms_3","Exterior Wall_Block","Feature_Fireplace","Feature_His and Hers Closets","Feature_Master Suite Main Floor","Feature_Media Room","Feature_Office \/ Study","Feature_Outdoor Fireplace","Feature_Outdoor Kitchen","Feature_Walk-in Pantry","Feature_Wet Bar","Foundation_Stem Wall Slab","Garage Bays_3","Garage Load_Side\/Swing","Half-Bath_2","Roof Pitch_8\/12","Stories_2"],"price":507200,"price_min":507200,"price_max":951000,"available":true,"price_varies":true,"compare_at_price":null,"compare_at_price_min":0,"compare_at_price_max":0,"compare_at_price_varies":false,"variants":[{"id":14592111047,"title":"Electronic PDF","option1":"Electronic PDF","option2":null,"option3":null,"sku":"6931-pdf","requires_shipping":false,"taxable":true,"featured_image":null,"available":true,"name":"Molina House Plan - Electronic PDF","public_title":"Electronic PDF","options":["Electronic PDF"],"price":507200,"weight":0,"compare_at_price":null,"inventory_quantity":1,"inventory_management":null,"inventory_policy":"deny","barcode":null,"requires_selling_plan":false,"selling_plan_allocations":[]},{"id":14592110983,"title":"Electronic CAD","option1":"Electronic CAD","option2":null,"option3":null,"sku":"6931-cad","requires_shipping":false,"taxable":true,"featured_image":null,"available":true,"name":"Molina House Plan - Electronic CAD","public_title":"Electronic CAD","options":["Electronic CAD"],"price":951000,"weight":3130,"compare_at_price":null,"inventory_quantity":1,"inventory_management":null,"inventory_policy":"deny","barcode":null,"requires_selling_plan":false,"selling_plan_allocations":[]}],"images":["\/\/saterdesign.com\/cdn\/shop\/products\/6931_FXC.jpeg?v=1547873882","\/\/saterdesign.com\/cdn\/shop\/products\/6931_RXC.jpeg?v=1547873882","\/\/saterdesign.com\/cdn\/shop\/products\/6931_LR.jpeg?v=1547873882","\/\/saterdesign.com\/cdn\/shop\/products\/6931_FO.jpeg?v=1547873882","\/\/saterdesign.com\/cdn\/shop\/products\/6931_KT.jpeg?v=1547873882","\/\/saterdesign.com\/cdn\/shop\/products\/6931_DR.jpeg?v=1547873882","\/\/saterdesign.com\/cdn\/shop\/products\/6931_DK.jpeg?v=1547873883","\/\/saterdesign.com\/cdn\/shop\/products\/6931_OT.jpeg?v=1547873883","\/\/saterdesign.com\/cdn\/shop\/products\/6931_MT.jpeg?v=1547873883","\/\/saterdesign.com\/cdn\/shop\/products\/6931_M.jpeg?v=1547873883","\/\/saterdesign.com\/cdn\/shop\/products\/6931_U.jpeg?v=1547873883"],"featured_image":"\/\/saterdesign.com\/cdn\/shop\/products\/6931_FXC.jpeg?v=1547873882","options":["Select to Purchase"],"media":[{"alt":"Molina-Front Elevation-Plan #6931","id":28303163465,"position":1,"preview_image":{"aspect_ratio":1.845,"height":420,"width":775,"src":"\/\/saterdesign.com\/cdn\/shop\/products\/6931_FXC.jpeg?v=1547873882"},"aspect_ratio":1.845,"height":420,"media_type":"image","src":"\/\/saterdesign.com\/cdn\/shop\/products\/6931_FXC.jpeg?v=1547873882","width":775},{"alt":"Molina-Rear Elevation-Plan #6931","id":28303196233,"position":2,"preview_image":{"aspect_ratio":1.265,"height":490,"width":620,"src":"\/\/saterdesign.com\/cdn\/shop\/products\/6931_RXC.jpeg?v=1547873882"},"aspect_ratio":1.265,"height":490,"media_type":"image","src":"\/\/saterdesign.com\/cdn\/shop\/products\/6931_RXC.jpeg?v=1547873882","width":620},{"alt":"Molina-Living Room-Plan #6931","id":28303229001,"position":3,"preview_image":{"aspect_ratio":0.785,"height":400,"width":314,"src":"\/\/saterdesign.com\/cdn\/shop\/products\/6931_LR.jpeg?v=1547873882"},"aspect_ratio":0.785,"height":400,"media_type":"image","src":"\/\/saterdesign.com\/cdn\/shop\/products\/6931_LR.jpeg?v=1547873882","width":314},{"alt":"Molina-Foyer-Dining Room-Plan #6931","id":28303261769,"position":4,"preview_image":{"aspect_ratio":1.25,"height":400,"width":500,"src":"\/\/saterdesign.com\/cdn\/shop\/products\/6931_FO.jpeg?v=1547873882"},"aspect_ratio":1.25,"height":400,"media_type":"image","src":"\/\/saterdesign.com\/cdn\/shop\/products\/6931_FO.jpeg?v=1547873882","width":500},{"alt":"Molina-Kitchen-Plan #6931","id":28303294537,"position":5,"preview_image":{"aspect_ratio":0.785,"height":400,"width":314,"src":"\/\/saterdesign.com\/cdn\/shop\/products\/6931_KT.jpeg?v=1547873882"},"aspect_ratio":0.785,"height":400,"media_type":"image","src":"\/\/saterdesign.com\/cdn\/shop\/products\/6931_KT.jpeg?v=1547873882","width":314},{"alt":"Molina-Dining Room-Plan #6931","id":28303327305,"position":6,"preview_image":{"aspect_ratio":0.785,"height":400,"width":314,"src":"\/\/saterdesign.com\/cdn\/shop\/products\/6931_DR.jpeg?v=1547873882"},"aspect_ratio":0.785,"height":400,"media_type":"image","src":"\/\/saterdesign.com\/cdn\/shop\/products\/6931_DR.jpeg?v=1547873882","width":314},{"alt":"Molina-Leisure Room-Plan #6931","id":28303360073,"position":7,"preview_image":{"aspect_ratio":1.272,"height":393,"width":500,"src":"\/\/saterdesign.com\/cdn\/shop\/products\/6931_DK.jpeg?v=1547873883"},"aspect_ratio":1.272,"height":393,"media_type":"image","src":"\/\/saterdesign.com\/cdn\/shop\/products\/6931_DK.jpeg?v=1547873883","width":500},{"alt":"Molina-Master Garden-Plan #6931","id":28303392841,"position":8,"preview_image":{"aspect_ratio":0.805,"height":621,"width":500,"src":"\/\/saterdesign.com\/cdn\/shop\/products\/6931_OT.jpeg?v=1547873883"},"aspect_ratio":0.805,"height":621,"media_type":"image","src":"\/\/saterdesign.com\/cdn\/shop\/products\/6931_OT.jpeg?v=1547873883","width":500},{"alt":"Molina-Master Bath-Plan #6931","id":28303425609,"position":9,"preview_image":{"aspect_ratio":0.8,"height":400,"width":320,"src":"\/\/saterdesign.com\/cdn\/shop\/products\/6931_MT.jpeg?v=1547873883"},"aspect_ratio":0.8,"height":400,"media_type":"image","src":"\/\/saterdesign.com\/cdn\/shop\/products\/6931_MT.jpeg?v=1547873883","width":320},{"alt":"Molina-Main Level Floor Plan #6931","id":28303458377,"position":10,"preview_image":{"aspect_ratio":1.128,"height":709,"width":800,"src":"\/\/saterdesign.com\/cdn\/shop\/products\/6931_M.jpeg?v=1547873883"},"aspect_ratio":1.128,"height":709,"media_type":"image","src":"\/\/saterdesign.com\/cdn\/shop\/products\/6931_M.jpeg?v=1547873883","width":800},{"alt":"Molina-Upper Level Floor Plan-#6931","id":28303491145,"position":11,"preview_image":{"aspect_ratio":1.023,"height":440,"width":450,"src":"\/\/saterdesign.com\/cdn\/shop\/products\/6931_U.jpeg?v=1547873883"},"aspect_ratio":1.023,"height":440,"media_type":"image","src":"\/\/saterdesign.com\/cdn\/shop\/products\/6931_U.jpeg?v=1547873883","width":450}],"requires_selling_plan":false,"selling_plan_groups":[],"content":"\u003cp\u003ePicture perfect, the Molina home plan is a spectacular Colonial Revival manor home and is truly one of a kind. Design elements are evident in the facade, such as balustrades, cupolas, turrets, hipped roofs and barrel tile. These elements return the home back to Revival roots but its interior takes a decidedly contemporary turn. The Molina home plan has a contemporary Mediterranean flavor with arched entry, tiled roofs and towering accents. This home flows seamlessly from indoors to outside. There are five sets of pocketing corner-less sliding glass doors and wrap around verandas.\u003c\/p\u003e\n\u003cp\u003eThe Molina home is perfect for entertaining as well as relaxation. One is greeted by the living room with pocketing corner-less sliding doors. Adjacent is the formal dining room with domed ceiling. Bridging the formal and informal areas is a centrally located wet bar. The spacious leisure room is wrapped in glass and is enjoined by the kitchen and nook. Beyond is an outdoor living space with a fireplace and outdoor kitchen.\u003c\/p\u003e\n\u003cp\u003eThe master suite features a foyer that overlooks a private courtyard with fountain. The master bath has distinct his and hers areas with a walk-in shower and whirlpool tub that looks onto the master garden. There are two guest suites on first floor. Each guest suite has a private full bathroom and walk in closet. There is a bonus room on the second floor with a wet bar and expansive covered veranda.This would be the ideal space for a theater room or game room.\u003c\/p\u003e\n\u003cp\u003eThe spacious floor plan has 6340 square feet of living area, three bedrooms, three full bathrooms and two powder baths.\u003c\/p\u003e\n\u003cp\u003eThis house plan offers a slab\/stem wall foundation. Are you interested in having a \u003ca title=\"The Sater Group\" href=\"http:\/\/satergroup.com\" target=\"_blank\"\u003ecustom home plan\u003c\/a\u003e designed just for you? Then please visit \u003ca title=\"The Sater Group\" href=\"http:\/\/satergroup.com\" target=\"_blank\"\u003eSater Group, Inc.\u003c\/a\u003e and learn how we can design the home of your dreams.\u003c\/p\u003e"}