We Will Match All Plan Sale Prices

0

Your Cart is Empty

Photographed homes may have been modified from original plan.

6879-pdf

Emerald Bay House Plan

3739 sq. ft. Total Living  |   3 Bedrooms  |  3 Full Baths
Select to Purchase
Add to Wishlist

House Plan Specifications

  • Total Living:  3739 sq. ft.
  • 1st Floor:  2460 sq. ft.
  • 2nd Floor:  1279 sq. ft.
  • Bedrooms:  3
  • Bathrooms:  3
  • Half Baths:  1
  • Width of House:  63 ft. 6 in.
  • Depth of House:  95 ft. 9 in.
  • Foundation:  Crawl Space
  • Exterior Wall:  Wood 2x6
  • Stories:  3
  • Roof Pitch:  5/12
  • Garage Bays:  3
  • Garage Load:  Rear
  • Garage:  573 sq. ft.
  • Balcony:  122 sq. ft.
  • Porch Patio:  125 sq. ft.
  • Portico:  310 sq. ft.
  • Sun Deck:  336 sq. ft.
  • Veranda:  423 sq. ft.
  • Total Area:  5628 sq. ft.

House Plan Features

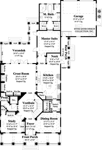
emerald bay-main level floor plan-plan #6879
emerald bay-upper level floor plan-plan 6879

What is in a Set of Plans?

Find out what we include in a set of house plans.

All Plans Need Engineering

Our plans do not include engineering for any specific site. Because of the great differences in geography and climate, each state, or municipality may have its own building regulations. Your plans will likely need site specific engineering in order to comply with those local requirements, therefore, we always recommend that you have the plans reviewed by a local structural engineer for compliance.

Want to Modify This Plan?

Click here to fill out a Modification Application.

We are experiencing an extremely high volume of modifications. We are working as fast as we can, however the time frame for modifications has been extended to a minimum of 10 weeks. At this time, we cannot guarantee any special time-frames. We apologize for the inconvenience.

Plan Options can increase the time it takes to process the house plans for delivery. If you have any questions, please contact us.

{"id":4264893447,"title":"Emerald Bay House Plan","handle":"emerald-bay-beautiful-luxury-cottage-house-plan","description":"\u003cp\u003eEmerald Bay is a beautiful, luxury cottage \u003ca href=\"https:\/\/saterdesign.com\/collections\/home-plans-house-plans\" title=\"home plan\"\u003ehome plan\u003c\/a\u003e. It features 3739 square feet of living space, three bedrooms and three and a half bathrooms. Emerald Bay is available with a crawlspace foundation. A charming cupola crowns the unique central rotunda of this house plan. Stately columns and elegant porches as charm and sophistication to Emerald Bay. Inside, the foyer flows into a three-story octagonal vestibule. It is open to the cupola above.\u003c\/p\u003e\n\u003cp\u003eTo the right of the foyer is the formal dining room. The dining room leads to a butler's pantry and utility closet, then on toward the home's kitchen. The spacious kitchen offers generous amounts of storage space with a center island and a pantry closet. It is open to the great room, which features built-ins, a fireplace and a wet bar.\u003c\/p\u003e\n\u003cp\u003ePast the home's breakfast nook resides the master suite, privately tucked away. The master bathroom offers his and her walk-in closets and vanities, a walk-in shower, a freestanding tub and a separate water closet. The master suite and great room open onto the home's verandah.\u003c\/p\u003e\n\u003cp\u003eTaking the stairs or the home's elevator, you will arrive on the second floor loft, which is open to the great room below and has access to a sun deck. The loft in Emerald Bay is equipped with a second wet bar, perfect for entertaining. The loft is a great place for a pool table or an extra living area. Upstairs you will find two guest suites with full bathrooms. Both of these guest suites have access to a front balcony, perfecting for enjoying the views or watching the sunset. Emerald Bay is complete with a rear facing two car garage.\u003c\/p\u003e\n\u003cp class=\"p1\"\u003e\u003cspan class=\"s1\"\u003eAre you interested in having a \u003ca href=\"http:\/\/satergroup.com\"\u003ecustom home plan\u003c\/a\u003e designed just for you? Then please visit \u003ca href=\"http:\/\/satergroup.com\"\u003eSater Group, Inc.\u003c\/a\u003e and learn how we can design something just for you.\u003c\/span\u003e\u003c\/p\u003e","published_at":"2016-02-02T14:23:00-05:00","created_at":"2016-02-02T14:23:42-05:00","vendor":"Sater Design","type":"Home Plans","tags":["930-406","Baths_3","Bedrooms_3","Exterior Wall_Wood 2x6","Feature_Butler’s Pantry","Feature_Elevator","Feature_Fireplace","Feature_Great Room","Feature_His and Hers Closets","Feature_Office \/ Study","Feature_Walk-in Pantry","Feature_Wet Bar","Foundation_Crawl Space","Garage Bays_3","Garage Load_Rear","Half-Bath_1","Roof Pitch_5\/12","Stories_3"],"price":198200,"price_min":198200,"price_max":336500,"available":true,"price_varies":true,"compare_at_price":null,"compare_at_price_min":0,"compare_at_price_max":0,"compare_at_price_varies":false,"variants":[{"id":14592435271,"title":"Electronic PDF","option1":"Electronic PDF","option2":null,"option3":null,"sku":"6879-pdf","requires_shipping":false,"taxable":true,"featured_image":null,"available":true,"name":"Emerald Bay House Plan - Electronic PDF","public_title":"Electronic PDF","options":["Electronic PDF"],"price":198200,"weight":0,"compare_at_price":null,"inventory_quantity":0,"inventory_management":null,"inventory_policy":"deny","barcode":null,"requires_selling_plan":false,"selling_plan_allocations":[]},{"id":14592435207,"title":"Electronic CAD","option1":"Electronic CAD","option2":null,"option3":null,"sku":"6879-cad","requires_shipping":false,"taxable":true,"featured_image":null,"available":true,"name":"Emerald Bay House Plan - Electronic CAD","public_title":"Electronic CAD","options":["Electronic CAD"],"price":336500,"weight":3130,"compare_at_price":null,"inventory_quantity":1,"inventory_management":null,"inventory_policy":"deny","barcode":null,"requires_selling_plan":false,"selling_plan_allocations":[]}],"images":["\/\/saterdesign.com\/cdn\/shop\/products\/6879_FXC.jpeg?v=1547873711","\/\/saterdesign.com\/cdn\/shop\/products\/6879_RXC.jpeg?v=1547873711","\/\/saterdesign.com\/cdn\/shop\/products\/6879_M.gif?v=1547873711","\/\/saterdesign.com\/cdn\/shop\/products\/6879_U.gif?v=1547873711"],"featured_image":"\/\/saterdesign.com\/cdn\/shop\/products\/6879_FXC.jpeg?v=1547873711","options":["Select to Purchase"],"media":[{"alt":"Emerald Bay-Front Elevation-Plan #6879","id":28312076361,"position":1,"preview_image":{"aspect_ratio":1.845,"height":420,"width":775,"src":"\/\/saterdesign.com\/cdn\/shop\/products\/6879_FXC.jpeg?v=1547873711"},"aspect_ratio":1.845,"height":420,"media_type":"image","src":"\/\/saterdesign.com\/cdn\/shop\/products\/6879_FXC.jpeg?v=1547873711","width":775},{"alt":"Emerald Bay-Rear Elevation-Plan #6879","id":28312109129,"position":2,"preview_image":{"aspect_ratio":1.363,"height":477,"width":650,"src":"\/\/saterdesign.com\/cdn\/shop\/products\/6879_RXC.jpeg?v=1547873711"},"aspect_ratio":1.363,"height":477,"media_type":"image","src":"\/\/saterdesign.com\/cdn\/shop\/products\/6879_RXC.jpeg?v=1547873711","width":650},{"alt":"Emerald Bay-Main Level Floor Plan-Plan #6879","id":28312141897,"position":3,"preview_image":{"aspect_ratio":0.679,"height":750,"width":509,"src":"\/\/saterdesign.com\/cdn\/shop\/products\/6879_M.gif?v=1547873711"},"aspect_ratio":0.679,"height":750,"media_type":"image","src":"\/\/saterdesign.com\/cdn\/shop\/products\/6879_M.gif?v=1547873711","width":509},{"alt":"Emerald Bay-Upper Level Floor Plan-Plan 6879","id":28312174665,"position":4,"preview_image":{"aspect_ratio":0.589,"height":773,"width":455,"src":"\/\/saterdesign.com\/cdn\/shop\/products\/6879_U.gif?v=1547873711"},"aspect_ratio":0.589,"height":773,"media_type":"image","src":"\/\/saterdesign.com\/cdn\/shop\/products\/6879_U.gif?v=1547873711","width":455}],"requires_selling_plan":false,"selling_plan_groups":[],"content":"\u003cp\u003eEmerald Bay is a beautiful, luxury cottage \u003ca href=\"https:\/\/saterdesign.com\/collections\/home-plans-house-plans\" title=\"home plan\"\u003ehome plan\u003c\/a\u003e. It features 3739 square feet of living space, three bedrooms and three and a half bathrooms. Emerald Bay is available with a crawlspace foundation. A charming cupola crowns the unique central rotunda of this house plan. Stately columns and elegant porches as charm and sophistication to Emerald Bay. Inside, the foyer flows into a three-story octagonal vestibule. It is open to the cupola above.\u003c\/p\u003e\n\u003cp\u003eTo the right of the foyer is the formal dining room. The dining room leads to a butler's pantry and utility closet, then on toward the home's kitchen. The spacious kitchen offers generous amounts of storage space with a center island and a pantry closet. It is open to the great room, which features built-ins, a fireplace and a wet bar.\u003c\/p\u003e\n\u003cp\u003ePast the home's breakfast nook resides the master suite, privately tucked away. The master bathroom offers his and her walk-in closets and vanities, a walk-in shower, a freestanding tub and a separate water closet. The master suite and great room open onto the home's verandah.\u003c\/p\u003e\n\u003cp\u003eTaking the stairs or the home's elevator, you will arrive on the second floor loft, which is open to the great room below and has access to a sun deck. The loft in Emerald Bay is equipped with a second wet bar, perfect for entertaining. The loft is a great place for a pool table or an extra living area. Upstairs you will find two guest suites with full bathrooms. Both of these guest suites have access to a front balcony, perfecting for enjoying the views or watching the sunset. Emerald Bay is complete with a rear facing two car garage.\u003c\/p\u003e\n\u003cp class=\"p1\"\u003e\u003cspan class=\"s1\"\u003eAre you interested in having a \u003ca href=\"http:\/\/satergroup.com\"\u003ecustom home plan\u003c\/a\u003e designed just for you? Then please visit \u003ca href=\"http:\/\/satergroup.com\"\u003eSater Group, Inc.\u003c\/a\u003e and learn how we can design something just for you.\u003c\/span\u003e\u003c\/p\u003e"}