We Will Match All Plan Sale Prices

0

Your Cart is Empty

Photographed homes may have been modified from original plan.

7076-pdf

Cadenwood House Plan

3763 sq. ft. Total Living  |   3 Bedrooms  |  3 Full Baths
Select to Purchase
Add to Wishlist

House Plan Specifications

  • Total Living:  3763 sq. ft.
  • 1st Floor:  2253 sq. ft.
  • 2nd Floor:  1510 sq. ft.
  • Bedrooms:  3
  • Bathrooms:  3
  • Half Baths:  1
  • Width of House:  81 ft. 8 in.
  • Depth of House:  61 ft. 4 in.
  • Foundation:  Crawl Space
  • Exterior Wall:  Wood 2x6
  • Stories:  2
  • Roof Pitch:  8/12
  • Garage Bays:  2
  • Garage Load:  Side/Swing
  • Garage:  673 sq. ft.
  • Entry:  639 sq. ft.
  • Veranda:  288 sq. ft.
  • Total Area:  5363 sq. ft.

House Plan Features

cadenwood-main level floor plan-plan #7076
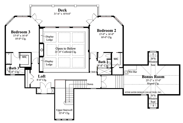
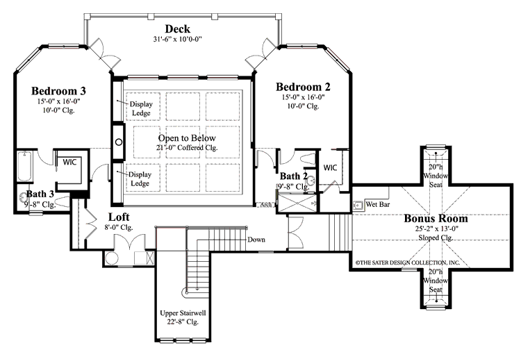
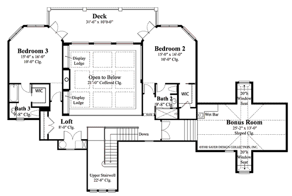
cadenwood-upper level floor plan-plan #7076

What is in a Set of Plans?

Find out what we include in a set of house plans.

All Plans Need Engineering

Our plans do not include engineering for any specific site. Because of the great differences in geography and climate, each state, or municipality may have its own building regulations. Your plans will likely need site specific engineering in order to comply with those local requirements, therefore, we always recommend that you have the plans reviewed by a local structural engineer for compliance.

Want to Modify This Plan?

Click here to fill out a Modification Application.

We are experiencing an extremely high volume of modifications. We are working as fast as we can, however the time frame for modifications has been extended to a minimum of 10 weeks. At this time, we cannot guarantee any special time-frames. We apologize for the inconvenience.

Plan Options can increase the time it takes to process the house plans for delivery. If you have any questions, please contact us.

{"id":4263961671,"title":"Cadenwood House Plan","handle":"cadenwood-charming-farmhouse-plan","description":"Cadenwood is a charming farmhouse \u003ca href=\"https:\/\/saterdesign.com\/collections\/home-plans-house-plans\" title=\"home plan\"\u003ehome plan\u003c\/a\u003e. An inviting wraparound porch announces the relaxed ambience of the interior. Symmetry of classic columns and a triple-window dormer perfect the curb appeal of Cadenwood. The Cadenwood house plan 3763 square feet of living area, three bedrooms and three and a half bathrooms.\u003cbr\u003e\u003cbr\u003e\n\u003cp class=\"p1\"\u003eThe foyer of Cadenwood immediately welcomes you to the formal rooms of the home - the study to the left and the dining room to the right. Through the foyer you walk directly into the great room. Built-in cabinetry, a fireplace and a series of French doors highlight the generous great room. The great room also features a convenient wet bar, perfect for entertaining. To the left of the plan, an island kitchen establishes a link between the nook and the main living area. It also easily serves the formal dining rooms. The access from room to room creates a very open space. Bay windows bring in natural light along the rear perimeter. Multiple French doors connect the outdoors via a covered porch and terrace that step down into the property.\u003c\/p\u003e\n\u003cp class=\"p1\"\u003eThe left side of Cadenwood is dedicated to the master suite and a private powder bath. The large master suite has his and her walk-in closets and French doors leading to the veranda. The master bathroom features his and her vanities, a walk-in shower, an oversized tub and a separate water closet.\u003c\/p\u003e\n\u003cp class=\"p1\"\u003eThe upper level of Cadenwood boasts a catwalk that connects two secondary guest suites and a sizable bonus room above the garage. Both of the guest bedrooms open to a rear deck, which overlooks the pool and spa area.\u003c\/p\u003e\n\u003cp class=\"p1\"\u003eCadenwood is available with a crawlspace foundation.\u003c\/p\u003e\n\u003cp class=\"p1\"\u003e\u003cspan class=\"s1\"\u003eAre you interested in having a \u003ca href=\"http:\/\/satergroup.com\"\u003ecustom home plan\u003c\/a\u003e designed just for you? Then please visit \u003ca href=\"http:\/\/satergroup.com\"\u003eSater Group, Inc.\u003c\/a\u003e and learn how we can design something just for you.\u003c\/span\u003e\u003c\/p\u003e","published_at":"2016-02-02T13:18:00-05:00","created_at":"2016-02-02T13:18:33-05:00","vendor":"Sater Design","type":"Home Plans","tags":["930-331","Basement Options","Baths_3","Bedrooms_3","Exterior Wall_Wood 2x6","Feature_Built-in Grill","Feature_Great Room","Feature_His and Hers Closets","Feature_Master Suite Main Floor","Feature_Office \/ Study","Feature_Walk-in Pantry","Feature_Wet Bar","Foundation_Crawl Space","Foundation_Optional Basements","Garage Bays_2","Garage Load_Side\/Swing","Half-Bath_1","Roof Pitch_8\/12","Stories_2"],"price":255900,"price_min":255900,"price_max":432700,"available":true,"price_varies":true,"compare_at_price":null,"compare_at_price_min":0,"compare_at_price_max":0,"compare_at_price_varies":false,"variants":[{"id":14590183623,"title":"Electronic PDF","option1":"Electronic PDF","option2":null,"option3":null,"sku":"7076-pdf","requires_shipping":false,"taxable":true,"featured_image":null,"available":true,"name":"Cadenwood House Plan - Electronic PDF","public_title":"Electronic PDF","options":["Electronic PDF"],"price":255900,"weight":0,"compare_at_price":null,"inventory_quantity":-4,"inventory_management":null,"inventory_policy":"deny","barcode":"","requires_selling_plan":false,"selling_plan_allocations":[]},{"id":14590183559,"title":"Electronic CAD","option1":"Electronic CAD","option2":null,"option3":null,"sku":"7076-cad","requires_shipping":false,"taxable":true,"featured_image":null,"available":true,"name":"Cadenwood House Plan - Electronic CAD","public_title":"Electronic CAD","options":["Electronic CAD"],"price":432700,"weight":3130,"compare_at_price":null,"inventory_quantity":1,"inventory_management":null,"inventory_policy":"deny","barcode":null,"requires_selling_plan":false,"selling_plan_allocations":[]}],"images":["\/\/saterdesign.com\/cdn\/shop\/products\/7076_FXC.jpeg?v=1547873594","\/\/saterdesign.com\/cdn\/shop\/products\/7076_RXC.jpeg?v=1547873594","\/\/saterdesign.com\/cdn\/shop\/products\/7076_LR.jpeg?v=1547873594","\/\/saterdesign.com\/cdn\/shop\/products\/7076_KT.jpeg?v=1547873594","\/\/saterdesign.com\/cdn\/shop\/products\/7076_DR.jpeg?v=1547873594","\/\/saterdesign.com\/cdn\/shop\/products\/7076_GS.jpeg?v=1547873594","\/\/saterdesign.com\/cdn\/shop\/products\/7076_MB.jpeg?v=1547873594","\/\/saterdesign.com\/cdn\/shop\/products\/7076_M.gif?v=1547873594","\/\/saterdesign.com\/cdn\/shop\/products\/7076_U.gif?v=1547873594"],"featured_image":"\/\/saterdesign.com\/cdn\/shop\/products\/7076_FXC.jpeg?v=1547873594","options":["Select to Purchase"],"media":[{"alt":"Cadenwood-Front Elevation-Plan #7076","id":28260630601,"position":1,"preview_image":{"aspect_ratio":1.845,"height":420,"width":775,"src":"\/\/saterdesign.com\/cdn\/shop\/products\/7076_FXC.jpeg?v=1547873594"},"aspect_ratio":1.845,"height":420,"media_type":"image","src":"\/\/saterdesign.com\/cdn\/shop\/products\/7076_FXC.jpeg?v=1547873594","width":775},{"alt":"Cadenwood-Veranda View-Plan #7076","id":28260663369,"position":2,"preview_image":{"aspect_ratio":1.266,"height":474,"width":600,"src":"\/\/saterdesign.com\/cdn\/shop\/products\/7076_RXC.jpeg?v=1547873594"},"aspect_ratio":1.266,"height":474,"media_type":"image","src":"\/\/saterdesign.com\/cdn\/shop\/products\/7076_RXC.jpeg?v=1547873594","width":600},{"alt":"Cadenwood-Great Room-Plan #7076","id":28260696137,"position":3,"preview_image":{"aspect_ratio":1.351,"height":370,"width":500,"src":"\/\/saterdesign.com\/cdn\/shop\/products\/7076_LR.jpeg?v=1547873594"},"aspect_ratio":1.351,"height":370,"media_type":"image","src":"\/\/saterdesign.com\/cdn\/shop\/products\/7076_LR.jpeg?v=1547873594","width":500},{"alt":"Cadenwood-Kitchen-Plan #7076","id":28260728905,"position":4,"preview_image":{"aspect_ratio":1.493,"height":335,"width":500,"src":"\/\/saterdesign.com\/cdn\/shop\/products\/7076_KT.jpeg?v=1547873594"},"aspect_ratio":1.493,"height":335,"media_type":"image","src":"\/\/saterdesign.com\/cdn\/shop\/products\/7076_KT.jpeg?v=1547873594","width":500},{"alt":"Cadenwood-Dining Room-Plan #7076","id":28260761673,"position":5,"preview_image":{"aspect_ratio":1.398,"height":322,"width":450,"src":"\/\/saterdesign.com\/cdn\/shop\/products\/7076_DR.jpeg?v=1547873594"},"aspect_ratio":1.398,"height":322,"media_type":"image","src":"\/\/saterdesign.com\/cdn\/shop\/products\/7076_DR.jpeg?v=1547873594","width":450},{"alt":"Cadenwood-Bedroom 3-Plan #7076","id":28260794441,"position":6,"preview_image":{"aspect_ratio":1.462,"height":342,"width":500,"src":"\/\/saterdesign.com\/cdn\/shop\/products\/7076_GS.jpeg?v=1547873594"},"aspect_ratio":1.462,"height":342,"media_type":"image","src":"\/\/saterdesign.com\/cdn\/shop\/products\/7076_GS.jpeg?v=1547873594","width":500},{"alt":"Cadenwood-Master Bedroom-Plan #7076","id":28260827209,"position":7,"preview_image":{"aspect_ratio":1.493,"height":335,"width":500,"src":"\/\/saterdesign.com\/cdn\/shop\/products\/7076_MB.jpeg?v=1547873594"},"aspect_ratio":1.493,"height":335,"media_type":"image","src":"\/\/saterdesign.com\/cdn\/shop\/products\/7076_MB.jpeg?v=1547873594","width":500},{"alt":"Cadenwood-Main Level Floor Plan-Plan #7076","id":28260859977,"position":8,"preview_image":{"aspect_ratio":1.218,"height":657,"width":800,"src":"\/\/saterdesign.com\/cdn\/shop\/products\/7076_M.gif?v=1547873594"},"aspect_ratio":1.218,"height":657,"media_type":"image","src":"\/\/saterdesign.com\/cdn\/shop\/products\/7076_M.gif?v=1547873594","width":800},{"alt":"Cadenwood-Upper Level Floor Plan-Plan #7076","id":28260892745,"position":9,"preview_image":{"aspect_ratio":1.488,"height":504,"width":750,"src":"\/\/saterdesign.com\/cdn\/shop\/products\/7076_U.gif?v=1547873594"},"aspect_ratio":1.488,"height":504,"media_type":"image","src":"\/\/saterdesign.com\/cdn\/shop\/products\/7076_U.gif?v=1547873594","width":750}],"requires_selling_plan":false,"selling_plan_groups":[],"content":"Cadenwood is a charming farmhouse \u003ca href=\"https:\/\/saterdesign.com\/collections\/home-plans-house-plans\" title=\"home plan\"\u003ehome plan\u003c\/a\u003e. An inviting wraparound porch announces the relaxed ambience of the interior. Symmetry of classic columns and a triple-window dormer perfect the curb appeal of Cadenwood. The Cadenwood house plan 3763 square feet of living area, three bedrooms and three and a half bathrooms.\u003cbr\u003e\u003cbr\u003e\n\u003cp class=\"p1\"\u003eThe foyer of Cadenwood immediately welcomes you to the formal rooms of the home - the study to the left and the dining room to the right. Through the foyer you walk directly into the great room. Built-in cabinetry, a fireplace and a series of French doors highlight the generous great room. The great room also features a convenient wet bar, perfect for entertaining. To the left of the plan, an island kitchen establishes a link between the nook and the main living area. It also easily serves the formal dining rooms. The access from room to room creates a very open space. Bay windows bring in natural light along the rear perimeter. Multiple French doors connect the outdoors via a covered porch and terrace that step down into the property.\u003c\/p\u003e\n\u003cp class=\"p1\"\u003eThe left side of Cadenwood is dedicated to the master suite and a private powder bath. The large master suite has his and her walk-in closets and French doors leading to the veranda. The master bathroom features his and her vanities, a walk-in shower, an oversized tub and a separate water closet.\u003c\/p\u003e\n\u003cp class=\"p1\"\u003eThe upper level of Cadenwood boasts a catwalk that connects two secondary guest suites and a sizable bonus room above the garage. Both of the guest bedrooms open to a rear deck, which overlooks the pool and spa area.\u003c\/p\u003e\n\u003cp class=\"p1\"\u003eCadenwood is available with a crawlspace foundation.\u003c\/p\u003e\n\u003cp class=\"p1\"\u003e\u003cspan class=\"s1\"\u003eAre you interested in having a \u003ca href=\"http:\/\/satergroup.com\"\u003ecustom home plan\u003c\/a\u003e designed just for you? Then please visit \u003ca href=\"http:\/\/satergroup.com\"\u003eSater Group, Inc.\u003c\/a\u003e and learn how we can design something just for you.\u003c\/span\u003e\u003c\/p\u003e"}