We Will Match All Plan Sale Prices

0

Your Cart is Empty

Photographed homes may have been modified from original plan.

6871-pdf

Reddington House Plan

4898 sq. ft. Total Living  |   4 Bedrooms  |  4 Full Baths
Select to Purchase
Add to Wishlist

House Plan Specifications

  • Total Living:  4898 sq. ft.
  • 1st Floor:  2006 sq. ft.
  • 2nd Floor:  1780 sq. ft.
  • Bonus Room:  610 sq. ft.
  • 3rd Floor:  1112 sq. ft.
  • Bedrooms:  4
  • Bathrooms:  4
  • Half Baths:  2
  • Width of House:  67 ft. 0 in.
  • Depth of House:  108 ft. 6 in.
  • Foundation:  Crawl Space
  • Exterior Wall:  Wood 2x6
  • Stories:  3
  • Roof Pitch:  9/12
  • Garage Bays:  3
  • Garage Load:  Rear
  • Garage:  816 sq. ft.
  • Bonus Room:  610 sq. ft.
  • Entry:  77 sq. ft.
  • Loggia:  695 sq. ft.
  • Solana:  351 sq. ft.
  • Sun Deck:  695 sq. ft.
  • Veranda:  715 sq. ft.
  • Total Area:  8857 sq. ft.
  • Building Height:  38'0"

House Plan Features

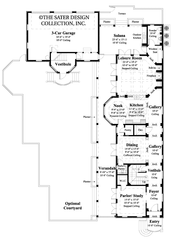
reddington home-main level floor plan-#6871
reddington home-upper level floor plan-#6871
reddington home-top floor plan-#6871

What is in a Set of Plans?

Find out what we include in a set of house plans.

All Plans Need Engineering

Our plans do not include engineering for any specific site. Because of the great differences in geography and climate, each state, or municipality may have its own building regulations. Your plans will likely need site specific engineering in order to comply with those local requirements, therefore, we always recommend that you have the plans reviewed by a local structural engineer for compliance.

Want to Modify This Plan?

Click here to fill out a Modification Application.

We are experiencing an extremely high volume of modifications. We are working as fast as we can, however the time frame for modifications has been extended to a minimum of 10 weeks. At this time, we cannot guarantee any special time-frames. We apologize for the inconvenience.

Plan Options can increase the time it takes to process the house plans for delivery. If you have any questions, please contact us.

{"id":4264926343,"title":"Reddington House Plan","handle":"reddington-colonial-style-house-plan","description":"\u003cp\u003eReddington is a beautiful colonial style house plan. An elegant arrangement of formal rooms crowned with specialty ceiling treatments leads to an open configuration of casual rooms for everyday enjoyment. Upon entering the Reddington home, the foyer leads to a parlor on the left. Double French doors lead out to the side verandah from the parlor. With a large walk in closet, this room can easily be converted into a guest bedroom.\u003c\/p\u003e\n\u003cp\u003eThe foyer leads into the vestibule and winding staircase to the left. Moving forward, the gallery is open to the dining room on the left. There is a butler's pantry below the dining room for convenience. The kitchen can be accessed through the pocket door from the dining room. The gallery hall also leads to the kitchen. There is a large walk in pantry for food storage. Past the gallery hall to the left is the elevator.\u003c\/p\u003e\n\u003cp\u003eThe Reddington kitchen has a large center island and is perfect for food preparation. The breakfast nook has a beautiful pyramid ceiling. The curved glass wall overlooks the side verandah. Keeping with the open concept feel, the pass-thru from the kitchen to the leisure room gives guests and family the perfect spot for being entertained.\u003c\/p\u003e\n\u003cp\u003eBuilt-ins throughout the home, like art niches, a window seat and custom cabinetry, anticipate needs. The leisure room has a warming fireplace to heat the entire area. There are double French doors from the leisure room to the rear solana. An outdoor kitchen in the solana provides an additional entertainment area.\u003c\/p\u003e\n\u003cp\u003eThe upper level contains the additional bedrooms and the master suite. The master bedroom opens up to the side verandah. The master bathroom has a lovely oval soaking tub as well as a separate walk in shower. Additionally, Reddington features an optional guest suite or bonus space to finish above the garage as well as an optional courtyard.\u003c\/p\u003e\n\u003cp\u003eThe plan also offers the optional finishing of the third floor, with club and billiards rooms, as well as a flexible loft space and playroom. Additionally, Reddington features an optional guest suite or bonus space to finish above the garage as well as an optional courtyard. The Reddington house plan has 3118 square feet of living area, four bedrooms and four full bathrooms and two half baths. The plan is available with a crawlspace foundation.\u003c\/p\u003e\n\u003cp\u003eAre you interested in having a \u003ca title=\"The Sater Group\" href=\"http:\/\/satergroup.com\" target=\"_blank\"\u003ecustom home plan\u003c\/a\u003e designed just for you? Then please visit \u003ca title=\"The Sater Group\" href=\"http:\/\/satergroup.com\" target=\"_blank\"\u003eSater Group, Inc.\u003c\/a\u003e and learn how we can design something just for you.\u003c\/p\u003e","published_at":"2016-02-02T14:25:00-05:00","created_at":"2016-02-02T14:25:27-05:00","vendor":"Sater Design","type":"Home Plans","tags":["930-359","Baths_4","Bedrooms_4","Exterior Wall_Wood 2x6","Feature_Butler’s Pantry","Feature_Elevator","Feature_Fireplace","Feature_Great Room","Feature_Media Room","Feature_Morning Kitchen","Feature_Office \/ Study","Feature_Outdoor Kitchen","Feature_Separate Guest Suite","Feature_Walk-in Pantry","Feature_Wet Bar","Foundation_Crawl Space","Garage Bays_3","Garage Load_Rear","Half-Bath_2","Roof Pitch_9\/12","Stories_3"],"price":391800,"price_min":391800,"price_max":734700,"available":true,"price_varies":true,"compare_at_price":null,"compare_at_price_min":0,"compare_at_price_max":0,"compare_at_price_varies":false,"variants":[{"id":14592487815,"title":"Electronic PDF","option1":"Electronic PDF","option2":null,"option3":null,"sku":"6871-pdf","requires_shipping":false,"taxable":true,"featured_image":null,"available":true,"name":"Reddington House Plan - Electronic PDF","public_title":"Electronic PDF","options":["Electronic PDF"],"price":391800,"weight":0,"compare_at_price":null,"inventory_quantity":1,"inventory_management":null,"inventory_policy":"deny","barcode":null,"requires_selling_plan":false,"selling_plan_allocations":[]},{"id":14592487751,"title":"Electronic CAD","option1":"Electronic CAD","option2":null,"option3":null,"sku":"6871-cad","requires_shipping":false,"taxable":true,"featured_image":null,"available":true,"name":"Reddington House Plan - Electronic CAD","public_title":"Electronic CAD","options":["Electronic CAD"],"price":734700,"weight":3130,"compare_at_price":null,"inventory_quantity":1,"inventory_management":null,"inventory_policy":"deny","barcode":null,"requires_selling_plan":false,"selling_plan_allocations":[]}],"images":["\/\/saterdesign.com\/cdn\/shop\/products\/6871-Award-Winner-main-image.jpg?v=1534903102","\/\/saterdesign.com\/cdn\/shop\/products\/6871_RXC.jpeg?v=1547873960","\/\/saterdesign.com\/cdn\/shop\/products\/6871_M.gif?v=1547873960","\/\/saterdesign.com\/cdn\/shop\/products\/6871_U.gif?v=1547873960","\/\/saterdesign.com\/cdn\/shop\/products\/6871_T.gif?v=1547873960","\/\/saterdesign.com\/cdn\/shop\/products\/6871_FXC.jpeg?v=1547873960"],"featured_image":"\/\/saterdesign.com\/cdn\/shop\/products\/6871-Award-Winner-main-image.jpg?v=1534903102","options":["Select to Purchase"],"media":[{"alt":"Reddington House Plan Sater Design","id":28313092169,"position":1,"preview_image":{"aspect_ratio":1.845,"height":555,"width":1024,"src":"\/\/saterdesign.com\/cdn\/shop\/products\/6871-Award-Winner-main-image.jpg?v=1534903102"},"aspect_ratio":1.845,"height":555,"media_type":"image","src":"\/\/saterdesign.com\/cdn\/shop\/products\/6871-Award-Winner-main-image.jpg?v=1534903102","width":1024},{"alt":"Reddington Home-Rear Elevation Render Image-Plan #6871","id":28313124937,"position":2,"preview_image":{"aspect_ratio":1.266,"height":474,"width":600,"src":"\/\/saterdesign.com\/cdn\/shop\/products\/6871_RXC.jpeg?v=1547873960"},"aspect_ratio":1.266,"height":474,"media_type":"image","src":"\/\/saterdesign.com\/cdn\/shop\/products\/6871_RXC.jpeg?v=1547873960","width":600},{"alt":"Reddington Home-Main Level Floor Plan-#6871","id":28313157705,"position":3,"preview_image":{"aspect_ratio":0.729,"height":988,"width":720,"src":"\/\/saterdesign.com\/cdn\/shop\/products\/6871_M.gif?v=1547873960"},"aspect_ratio":0.729,"height":988,"media_type":"image","src":"\/\/saterdesign.com\/cdn\/shop\/products\/6871_M.gif?v=1547873960","width":720},{"alt":"Reddington Home-Upper Level Floor Plan-#6871","id":28313190473,"position":4,"preview_image":{"aspect_ratio":0.667,"height":1080,"width":720,"src":"\/\/saterdesign.com\/cdn\/shop\/products\/6871_U.gif?v=1547873960"},"aspect_ratio":0.667,"height":1080,"media_type":"image","src":"\/\/saterdesign.com\/cdn\/shop\/products\/6871_U.gif?v=1547873960","width":720},{"alt":"Reddington Home-Top Floor Plan-#6871","id":28313223241,"position":5,"preview_image":{"aspect_ratio":0.451,"height":831,"width":375,"src":"\/\/saterdesign.com\/cdn\/shop\/products\/6871_T.gif?v=1547873960"},"aspect_ratio":0.451,"height":831,"media_type":"image","src":"\/\/saterdesign.com\/cdn\/shop\/products\/6871_T.gif?v=1547873960","width":375},{"alt":"Reddington Home-Front Elevation Render Image-Plan #6871","id":28313256009,"position":6,"preview_image":{"aspect_ratio":1.845,"height":420,"width":775,"src":"\/\/saterdesign.com\/cdn\/shop\/products\/6871_FXC.jpeg?v=1547873960"},"aspect_ratio":1.845,"height":420,"media_type":"image","src":"\/\/saterdesign.com\/cdn\/shop\/products\/6871_FXC.jpeg?v=1547873960","width":775}],"requires_selling_plan":false,"selling_plan_groups":[],"content":"\u003cp\u003eReddington is a beautiful colonial style house plan. An elegant arrangement of formal rooms crowned with specialty ceiling treatments leads to an open configuration of casual rooms for everyday enjoyment. Upon entering the Reddington home, the foyer leads to a parlor on the left. Double French doors lead out to the side verandah from the parlor. With a large walk in closet, this room can easily be converted into a guest bedroom.\u003c\/p\u003e\n\u003cp\u003eThe foyer leads into the vestibule and winding staircase to the left. Moving forward, the gallery is open to the dining room on the left. There is a butler's pantry below the dining room for convenience. The kitchen can be accessed through the pocket door from the dining room. The gallery hall also leads to the kitchen. There is a large walk in pantry for food storage. Past the gallery hall to the left is the elevator.\u003c\/p\u003e\n\u003cp\u003eThe Reddington kitchen has a large center island and is perfect for food preparation. The breakfast nook has a beautiful pyramid ceiling. The curved glass wall overlooks the side verandah. Keeping with the open concept feel, the pass-thru from the kitchen to the leisure room gives guests and family the perfect spot for being entertained.\u003c\/p\u003e\n\u003cp\u003eBuilt-ins throughout the home, like art niches, a window seat and custom cabinetry, anticipate needs. The leisure room has a warming fireplace to heat the entire area. There are double French doors from the leisure room to the rear solana. An outdoor kitchen in the solana provides an additional entertainment area.\u003c\/p\u003e\n\u003cp\u003eThe upper level contains the additional bedrooms and the master suite. The master bedroom opens up to the side verandah. The master bathroom has a lovely oval soaking tub as well as a separate walk in shower. Additionally, Reddington features an optional guest suite or bonus space to finish above the garage as well as an optional courtyard.\u003c\/p\u003e\n\u003cp\u003eThe plan also offers the optional finishing of the third floor, with club and billiards rooms, as well as a flexible loft space and playroom. Additionally, Reddington features an optional guest suite or bonus space to finish above the garage as well as an optional courtyard. The Reddington house plan has 3118 square feet of living area, four bedrooms and four full bathrooms and two half baths. The plan is available with a crawlspace foundation.\u003c\/p\u003e\n\u003cp\u003eAre you interested in having a \u003ca title=\"The Sater Group\" href=\"http:\/\/satergroup.com\" target=\"_blank\"\u003ecustom home plan\u003c\/a\u003e designed just for you? Then please visit \u003ca title=\"The Sater Group\" href=\"http:\/\/satergroup.com\" target=\"_blank\"\u003eSater Group, Inc.\u003c\/a\u003e and learn how we can design something just for you.\u003c\/p\u003e"}