We Will Match All Plan Sale Prices

0

Your Cart is Empty

Photographed homes may have been modified from original plan.

6960-pdf

Vienetta House Plan

5498 sq. ft. Total Living  |   4 Bedrooms  |  4 Full Baths
Select to Purchase
Add to Wishlist

House Plan Specifications

  • Total Living:  5498 sq. ft.
  • 1st Floor:  3987 sq. ft.
  • 2nd Floor:  1511 sq. ft.
  • Bedrooms:  4
  • Bathrooms:  4
  • Half Baths:  1
  • Width of House:  89 ft. 0 in.
  • Depth of House:  124 ft. 0 in.
  • Foundation:  Stem Wall Slab
  • Exterior Wall:  Wood 2x6
  • Stories:  2
  • Roof Pitch:  6/12
  • Garage Bays:  3
  • Garage Load:  Side/Swing
  • Garage:  881 sq. ft.
  • Balcony:  29 sq. ft.
  • Deck:  518 sq. ft.
  • Entry:  124 sq. ft.
  • Loggia:  1497 sq. ft.
  • Total Area:  8547 sq. ft.
  • Building Height:  31'6"

House Plan Features

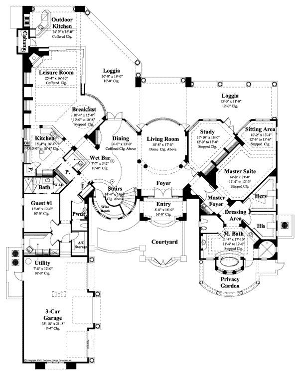
vienetta-main floor plan-plan #6960
vienetta-second floor plan-plan #6960

What is in a Set of Plans?

Find out what we include in a set of house plans.

All Plans Need Engineering

Our plans do not include engineering for any specific site. Because of the great differences in geography and climate, each state, or municipality may have its own building regulations. Your plans will likely need site specific engineering in order to comply with those local requirements, therefore, we always recommend that you have the plans reviewed by a local structural engineer for compliance.

Want to Modify This Plan?

Click here to fill out a Modification Application.

We are experiencing an extremely high volume of modifications. We are working as fast as we can, however the time frame for modifications has been extended to a minimum of 10 weeks. At this time, we cannot guarantee any special time-frames. We apologize for the inconvenience.

Plan Options can increase the time it takes to process the house plans for delivery. If you have any questions, please contact us.

{"id":4264606791,"title":"Vienetta House Plan","handle":"vienetta-luxury-house-plan","description":"\u003cp\u003eThe Vienetta house plan is the epitome of luxury. The graceful curves of rotundas, dramatically changing roof pitches and architectural enhancements delight the eye with their gentle movement. Upon entry, the Vienetta plan has half-columns, corbels and an arbor. Guests know they've arrived as they step up to the terrace and are embraced by the Vienetta home's elegant arched entry.\u003c\/p\u003e\n\u003cp\u003eThe gentle curve of the elegant staircase that sweeps upward in a rotunda is breathtaking. The curved windows in the living room and breakfast nook look out to the Loggia. The graceful arc of a wet bar and wine room heighten the visual appeal of the Vienetta plan.\u003c\/p\u003e\n\u003cp\u003eThe master suite encompasses the entire right side of the house. The master bedroom has a separate sitting area overlooking the Loggia. His and hers walk in closets provide ample storage space. There is a separate dressing area leading into the master bathroom. An elevated garden tub looks through three arched windows onto a private garden. There is a large walk-in shower and separate vanities with sinks.\u003c\/p\u003e\n\u003cp\u003eOn the other side of the Vienetta is the kitchen. It has a large island providing all important counter space. A walk in pantry is a must have as well as a wet bar just steps away from the kitchen. The breakfast nook also has the curved glass window looking out to the loggia. It also looks into the leisure room with retreating walls and a corner fireplace. Below the kitchen is a private guest room with full bath.\u003c\/p\u003e\n\u003cp\u003eUpstairs, the loft provides access to two spacious second story guest suites with baths and an observation deck. The media room serves as a theater room or possibly a game room. The outdoor kitchen is a great gathering place after a swim in the pool. The spacious house plan has 5498 square feet of living area. It has four bedrooms and four and 1\/2 baths. The floor plan sits on a slab\/stem wall foundation.\u003c\/p\u003e\n\u003cp\u003eAre you interested in having a \u003ca title=\"The Sater Group\" href=\"http:\/\/satergroup.com\" target=\"_blank\" rel=\"noopener noreferrer\"\u003ecustom home plan\u003c\/a\u003e designed just for you? Then please visit \u003ca title=\"The Sater Group\" href=\"http:\/\/satergroup.com\" target=\"_blank\" rel=\"noopener noreferrer\"\u003eSater Group, Inc.\u003c\/a\u003e and learn how we can design something just for you.\u003c\/p\u003e","published_at":"2016-02-02T14:03:00-05:00","created_at":"2016-02-02T14:03:20-05:00","vendor":"Sater Design","type":"Home Plans","tags":["930-436","Basement Options","Baths_4","Bedrooms_4","Exterior Wall_Wood 2x6","Feature_Fireplace","Feature_His and Hers Closets","Feature_Master Suite Sitting Area","Feature_Media Room","Feature_Morning Kitchen","Feature_Office \/ Study","Feature_Outdoor Kitchen","Feature_Walk-in Pantry","Feature_Wet Bar","Feature_Wine Cellar","Foundation_Optional Basements","Foundation_Stem Wall Slab","Garage Bays_3","Garage Load_Side\/Swing","Half-Bath_1","Roof Pitch_6\/12","Stories_2"],"price":439800,"price_min":439800,"price_max":824700,"available":true,"price_varies":true,"compare_at_price":null,"compare_at_price_min":0,"compare_at_price_max":0,"compare_at_price_varies":false,"variants":[{"id":14591678663,"title":"Electronic PDF","option1":"Electronic PDF","option2":null,"option3":null,"sku":"6960-pdf","requires_shipping":false,"taxable":true,"featured_image":null,"available":true,"name":"Vienetta House Plan - Electronic PDF","public_title":"Electronic PDF","options":["Electronic PDF"],"price":439800,"weight":0,"compare_at_price":null,"inventory_quantity":-1,"inventory_management":null,"inventory_policy":"deny","barcode":null,"requires_selling_plan":false,"selling_plan_allocations":[]},{"id":14591678599,"title":"Electronic CAD","option1":"Electronic CAD","option2":null,"option3":null,"sku":"6960-cad","requires_shipping":false,"taxable":true,"featured_image":null,"available":true,"name":"Vienetta House Plan - Electronic CAD","public_title":"Electronic CAD","options":["Electronic CAD"],"price":824700,"weight":3130,"compare_at_price":null,"inventory_quantity":1,"inventory_management":null,"inventory_policy":"deny","barcode":null,"requires_selling_plan":false,"selling_plan_allocations":[]}],"images":["\/\/saterdesign.com\/cdn\/shop\/products\/69101.jpeg?v=1547874084","\/\/saterdesign.com\/cdn\/shop\/products\/6910_RXC1.jpeg?v=1547874084","\/\/saterdesign.com\/cdn\/shop\/products\/6960_M.gif?v=1547874084","\/\/saterdesign.com\/cdn\/shop\/products\/6960_U.gif?v=1547874084"],"featured_image":"\/\/saterdesign.com\/cdn\/shop\/products\/69101.jpeg?v=1547874084","options":["Select to Purchase"],"media":[{"alt":"Vienetta-Front Elevation-Plan #6960","id":28291596361,"position":1,"preview_image":{"aspect_ratio":1.845,"height":420,"width":775,"src":"\/\/saterdesign.com\/cdn\/shop\/products\/69101.jpeg?v=1547874084"},"aspect_ratio":1.845,"height":420,"media_type":"image","src":"\/\/saterdesign.com\/cdn\/shop\/products\/69101.jpeg?v=1547874084","width":775},{"alt":"Fiorentino-Rear Elevation-Sater Design Collection-6910","id":28291629129,"position":2,"preview_image":{"aspect_ratio":1.266,"height":474,"width":600,"src":"\/\/saterdesign.com\/cdn\/shop\/products\/6910_RXC1.jpeg?v=1547874084"},"aspect_ratio":1.266,"height":474,"media_type":"image","src":"\/\/saterdesign.com\/cdn\/shop\/products\/6910_RXC1.jpeg?v=1547874084","width":600},{"alt":"Vienetta-Main Floor Plan-Plan #6960","id":28291661897,"position":3,"preview_image":{"aspect_ratio":0.799,"height":1011,"width":808,"src":"\/\/saterdesign.com\/cdn\/shop\/products\/6960_M.gif?v=1547874084"},"aspect_ratio":0.799,"height":1011,"media_type":"image","src":"\/\/saterdesign.com\/cdn\/shop\/products\/6960_M.gif?v=1547874084","width":808},{"alt":"Vienetta-Second Floor Plan-Plan #6960","id":28291694665,"position":4,"preview_image":{"aspect_ratio":0.744,"height":706,"width":525,"src":"\/\/saterdesign.com\/cdn\/shop\/products\/6960_U.gif?v=1547874084"},"aspect_ratio":0.744,"height":706,"media_type":"image","src":"\/\/saterdesign.com\/cdn\/shop\/products\/6960_U.gif?v=1547874084","width":525}],"requires_selling_plan":false,"selling_plan_groups":[],"content":"\u003cp\u003eThe Vienetta house plan is the epitome of luxury. The graceful curves of rotundas, dramatically changing roof pitches and architectural enhancements delight the eye with their gentle movement. Upon entry, the Vienetta plan has half-columns, corbels and an arbor. Guests know they've arrived as they step up to the terrace and are embraced by the Vienetta home's elegant arched entry.\u003c\/p\u003e\n\u003cp\u003eThe gentle curve of the elegant staircase that sweeps upward in a rotunda is breathtaking. The curved windows in the living room and breakfast nook look out to the Loggia. The graceful arc of a wet bar and wine room heighten the visual appeal of the Vienetta plan.\u003c\/p\u003e\n\u003cp\u003eThe master suite encompasses the entire right side of the house. The master bedroom has a separate sitting area overlooking the Loggia. His and hers walk in closets provide ample storage space. There is a separate dressing area leading into the master bathroom. An elevated garden tub looks through three arched windows onto a private garden. There is a large walk-in shower and separate vanities with sinks.\u003c\/p\u003e\n\u003cp\u003eOn the other side of the Vienetta is the kitchen. It has a large island providing all important counter space. A walk in pantry is a must have as well as a wet bar just steps away from the kitchen. The breakfast nook also has the curved glass window looking out to the loggia. It also looks into the leisure room with retreating walls and a corner fireplace. Below the kitchen is a private guest room with full bath.\u003c\/p\u003e\n\u003cp\u003eUpstairs, the loft provides access to two spacious second story guest suites with baths and an observation deck. The media room serves as a theater room or possibly a game room. The outdoor kitchen is a great gathering place after a swim in the pool. The spacious house plan has 5498 square feet of living area. It has four bedrooms and four and 1\/2 baths. The floor plan sits on a slab\/stem wall foundation.\u003c\/p\u003e\n\u003cp\u003eAre you interested in having a \u003ca title=\"The Sater Group\" href=\"http:\/\/satergroup.com\" target=\"_blank\" rel=\"noopener noreferrer\"\u003ecustom home plan\u003c\/a\u003e designed just for you? Then please visit \u003ca title=\"The Sater Group\" href=\"http:\/\/satergroup.com\" target=\"_blank\" rel=\"noopener noreferrer\"\u003eSater Group, Inc.\u003c\/a\u003e and learn how we can design something just for you.\u003c\/p\u003e"}