We Will Match All Plan Sale Prices

0

Your Cart is Empty

Photographed homes may have been modified from original plan.

7062-pdf

Oak Island House Plan

3099 sq. ft. Total Living  |   3 Bedrooms  |  3 Full Baths
Select to Purchase
Add to Wishlist

House Plan Specifications

  • Total Living:  3099 sq. ft.
  • 1st Floor:  2137 sq. ft.
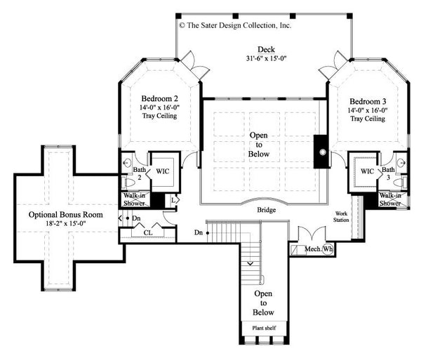
  • 2nd Floor:  962 sq. ft.
  • Bonus Room:  425 sq. ft.
  • Bedrooms:  3
  • Bathrooms:  3
  • Half Baths:  1
  • Width of House:  76 ft. 8 in.
  • Depth of House:  64 ft. 0 in.
  • Foundation:  Crawl Space
  • Exterior Wall:  Wood 2x6
  • Stories:  2
  • Roof Pitch:  10/12
  • Garage Bays:  2
  • Garage Load:  Side/Swing
  • Garage:  596 sq. ft.
  • Bonus Room:  425 sq. ft.
  • Deck:  425 sq. ft.
  • Entry:  599 sq. ft.
  • Porch Patio:  425 sq. ft.
  • Total Area:  5569 sq. ft.
  • Building Height:  34 ft. 2 in.

House Plan Features

oak island home main level floor plan 7062
oak island home upper level floor plan 7062

Customer Images

Photographed homes may have been modified from original plan.

What is in a Set of Plans?

Find out what we include in a set of house plans.

All Plans Need Engineering

Our plans do not include engineering for any specific site. Because of the great differences in geography and climate, each state, or municipality may have its own building regulations. Your plans will likely need site specific engineering in order to comply with those local requirements, therefore, we always recommend that you have the plans reviewed by a local structural engineer for compliance.

Want to Modify This Plan?

Click here to fill out a Modification Application.

We are experiencing an extremely high volume of modifications. We are working as fast as we can, however the time frame for modifications has been extended to a minimum of 10 weeks. At this time, we cannot guarantee any special time-frames. We apologize for the inconvenience.

Plan Options can increase the time it takes to process the house plans for delivery. If you have any questions, please contact us.

{"id":4264380167,"title":"Oak Island House Plan","handle":"oak-island-house-plan","description":"\u003cp\u003eStyle and elegance are found in the Oak Island window dormers, mirrored stone chimneys and split-shake tile roof. The exterior of the Oak Island home is largely covered in stone, adding a rustic appeal. The partial wraparound front porch features a wood ceiling and plenty of space for welcoming guests.\u003c\/p\u003e\n\u003cp\u003eA big, welcoming great room—with multiple sets of French doors—leading out to a secluded back porch, features built-ins and open access to the kitchen and nook. Lots of counter space and a large island round out the kitchen and the bay windows in the nook area give the room a much more open feel. A soaring coffered ceiling tops the great room. Built in cabinets with decorative arches flank the stone fireplace. A wet bar is nestled in the corner of the room and allows access to drinks and snacks without accessing the kitchen.\u003c\/p\u003e\n\u003cp\u003eA convenient powder room in the hall leads to double doors that access the master retreat, which also reveals private access to a large study, both with beautiful tray ceilings. His and hers walk in closets add extra storage space to the master suite. The master bath has a large whirlpool soaking tub as well as a corner walk in shower and separate water closet.\u003c\/p\u003e\n\u003cp\u003eUpstairs, two guest bedrooms, each with large baths and walk-in closets, adjoin the bonus room via a catwalk which is open to below overlooking the great room. Both of the upstairs bedrooms have french doors that lead out to a private rear deck. The Oak Island house plan has 3509 square feet of living area, and it has three bedrooms and three and 1\/2 bathrooms. The Oak Island home plan is available in a crawlspace foundation.\u003c\/p\u003e\n\u003cp\u003eAre you interested in having a \u003ca title=\"The Sater Group\" href=\"http:\/\/satergroup.com\" target=\"_blank\" rel=\"noopener noreferrer\"\u003ecustom home plan\u003c\/a\u003e designed just for you? Then please visit \u003ca title=\"The Sater Group\" href=\"http:\/\/satergroup.com\" target=\"_blank\" rel=\"noopener noreferrer\"\u003eSater Group, Inc.\u003c\/a\u003e and see how we can design the home of your dreams.\u003c\/p\u003e","published_at":"2016-02-02T13:48:00-05:00","created_at":"2016-02-02T13:48:50-05:00","vendor":"Sater Design","type":"Home Plans","tags":["930-10","Basement Options","Baths_3","Bedrooms_3","Exterior Wall_Wood 2x6","Feature_Fireplace","Feature_Great Room","Feature_His and Hers Closets","Feature_Master Suite Main Floor","Feature_Office \/ Study","Feature_Wet Bar","Foundation_Crawl Space","Foundation_Optional Basements","Garage Bays_2","Garage Load_Side\/Swing","Half-Bath_1","Roof Pitch_10\/12","Stories_2"],"price":164200,"price_min":164200,"price_max":278900,"available":true,"price_varies":true,"compare_at_price":null,"compare_at_price_min":0,"compare_at_price_max":0,"compare_at_price_varies":false,"variants":[{"id":14591048135,"title":"Electronic PDF","option1":"Electronic PDF","option2":null,"option3":null,"sku":"7062-pdf","requires_shipping":false,"taxable":true,"featured_image":null,"available":true,"name":"Oak Island House Plan - Electronic PDF","public_title":"Electronic PDF","options":["Electronic PDF"],"price":164200,"weight":0,"compare_at_price":null,"inventory_quantity":-14,"inventory_management":null,"inventory_policy":"deny","barcode":null,"requires_selling_plan":false,"selling_plan_allocations":[]},{"id":14591048071,"title":"Electronic CAD","option1":"Electronic CAD","option2":null,"option3":null,"sku":"7062-cad","requires_shipping":false,"taxable":true,"featured_image":null,"available":true,"name":"Oak Island House Plan - Electronic CAD","public_title":"Electronic CAD","options":["Electronic CAD"],"price":278900,"weight":3130,"compare_at_price":null,"inventory_quantity":-2,"inventory_management":null,"inventory_policy":"deny","barcode":null,"requires_selling_plan":false,"selling_plan_allocations":[]}],"images":["\/\/saterdesign.com\/cdn\/shop\/products\/7062-fxc-ext-3.jpeg?v=1547873917","\/\/saterdesign.com\/cdn\/shop\/products\/7062_FXC1.jpeg?v=1547873917","\/\/saterdesign.com\/cdn\/shop\/products\/7062-front-exterior-1.jpeg?v=1547873917","\/\/saterdesign.com\/cdn\/shop\/products\/7062-front-porch.jpeg?v=1547873917","\/\/saterdesign.com\/cdn\/shop\/products\/7062-entry2.jpeg?v=1547873917","\/\/saterdesign.com\/cdn\/shop\/products\/7062-greatroom-from-above-1.jpeg?v=1547873917","\/\/saterdesign.com\/cdn\/shop\/products\/7062-greatroom-from-above-2.jpeg?v=1547873917","\/\/saterdesign.com\/cdn\/shop\/products\/7062-great-room-1.jpeg?v=1547873917","\/\/saterdesign.com\/cdn\/shop\/products\/7062-great-room-2.jpeg?v=1547873917","\/\/saterdesign.com\/cdn\/shop\/products\/7062-great-room-3.jpeg?v=1547873917","\/\/saterdesign.com\/cdn\/shop\/products\/7062-entry-stairs.jpeg?v=1547873917","\/\/saterdesign.com\/cdn\/shop\/products\/7062-kitchen-3.jpeg?v=1547873917","\/\/saterdesign.com\/cdn\/shop\/products\/7062-kitchen-2.jpeg?v=1547873917","\/\/saterdesign.com\/cdn\/shop\/products\/7062-kitchen-1.jpeg?v=1547873917","\/\/saterdesign.com\/cdn\/shop\/products\/7062-dining-room.jpeg?v=1547873917","\/\/saterdesign.com\/cdn\/shop\/products\/7062-guest-suite.jpeg?v=1547873917","\/\/saterdesign.com\/cdn\/shop\/products\/7062-master-bath.jpeg?v=1547873917","\/\/saterdesign.com\/cdn\/shop\/products\/7062-rear-exterior-2.jpeg?v=1547873917","\/\/saterdesign.com\/cdn\/shop\/products\/7062-front-elevation.jpeg?v=1547873917","\/\/saterdesign.com\/cdn\/shop\/products\/7062_M.jpeg?v=1547873917","\/\/saterdesign.com\/cdn\/shop\/products\/7062_U.jpeg?v=1547873917"],"featured_image":"\/\/saterdesign.com\/cdn\/shop\/products\/7062-fxc-ext-3.jpeg?v=1547873917","options":["Select to Purchase"],"media":[{"alt":"Oak Island Home - Exterior View Plan 7062","id":28282716233,"position":1,"preview_image":{"aspect_ratio":1.845,"height":542,"width":1000,"src":"\/\/saterdesign.com\/cdn\/shop\/products\/7062-fxc-ext-3.jpeg?v=1547873917"},"aspect_ratio":1.845,"height":542,"media_type":"image","src":"\/\/saterdesign.com\/cdn\/shop\/products\/7062-fxc-ext-3.jpeg?v=1547873917","width":1000},{"alt":"Oak Island-Front Elevation-Plan #7062","id":28282749001,"position":2,"preview_image":{"aspect_ratio":1.845,"height":420,"width":775,"src":"\/\/saterdesign.com\/cdn\/shop\/products\/7062_FXC1.jpeg?v=1547873917"},"aspect_ratio":1.845,"height":420,"media_type":"image","src":"\/\/saterdesign.com\/cdn\/shop\/products\/7062_FXC1.jpeg?v=1547873917","width":775},{"alt":"Oak Island Home Plan 7062 front exterior 1","id":28282781769,"position":3,"preview_image":{"aspect_ratio":0.666,"height":950,"width":633,"src":"\/\/saterdesign.com\/cdn\/shop\/products\/7062-front-exterior-1.jpeg?v=1547873917"},"aspect_ratio":0.666,"height":950,"media_type":"image","src":"\/\/saterdesign.com\/cdn\/shop\/products\/7062-front-exterior-1.jpeg?v=1547873917","width":633},{"alt":"Oak Island Home Plan 7062 front porch","id":28282814537,"position":4,"preview_image":{"aspect_ratio":0.667,"height":966,"width":644,"src":"\/\/saterdesign.com\/cdn\/shop\/products\/7062-front-porch.jpeg?v=1547873917"},"aspect_ratio":0.667,"height":966,"media_type":"image","src":"\/\/saterdesign.com\/cdn\/shop\/products\/7062-front-porch.jpeg?v=1547873917","width":644},{"alt":"Oak Island Home Plan 7062 Entry 2","id":28282847305,"position":5,"preview_image":{"aspect_ratio":1.5,"height":660,"width":990,"src":"\/\/saterdesign.com\/cdn\/shop\/products\/7062-entry2.jpeg?v=1547873917"},"aspect_ratio":1.5,"height":660,"media_type":"image","src":"\/\/saterdesign.com\/cdn\/shop\/products\/7062-entry2.jpeg?v=1547873917","width":990},{"alt":"Oak Island Home Plan 7062 Greatroom from above 1","id":28282880073,"position":6,"preview_image":{"aspect_ratio":0.666,"height":977,"width":651,"src":"\/\/saterdesign.com\/cdn\/shop\/products\/7062-greatroom-from-above-1.jpeg?v=1547873917"},"aspect_ratio":0.666,"height":977,"media_type":"image","src":"\/\/saterdesign.com\/cdn\/shop\/products\/7062-greatroom-from-above-1.jpeg?v=1547873917","width":651},{"alt":"Oak Island Home Plan 7062 Greatroom from above 2","id":28282912841,"position":7,"preview_image":{"aspect_ratio":0.667,"height":955,"width":637,"src":"\/\/saterdesign.com\/cdn\/shop\/products\/7062-greatroom-from-above-2.jpeg?v=1547873917"},"aspect_ratio":0.667,"height":955,"media_type":"image","src":"\/\/saterdesign.com\/cdn\/shop\/products\/7062-greatroom-from-above-2.jpeg?v=1547873917","width":637},{"alt":"Oak Island Home Plan 7062 Great room 1","id":28282945609,"position":8,"preview_image":{"aspect_ratio":1.5,"height":664,"width":996,"src":"\/\/saterdesign.com\/cdn\/shop\/products\/7062-great-room-1.jpeg?v=1547873917"},"aspect_ratio":1.5,"height":664,"media_type":"image","src":"\/\/saterdesign.com\/cdn\/shop\/products\/7062-great-room-1.jpeg?v=1547873917","width":996},{"alt":"Oak Island Home Plan 7062 Great-room-2","id":28282978377,"position":9,"preview_image":{"aspect_ratio":0.667,"height":988,"width":659,"src":"\/\/saterdesign.com\/cdn\/shop\/products\/7062-great-room-2.jpeg?v=1547873917"},"aspect_ratio":0.667,"height":988,"media_type":"image","src":"\/\/saterdesign.com\/cdn\/shop\/products\/7062-great-room-2.jpeg?v=1547873917","width":659},{"alt":"Oak Island Home Plan 7062 Great-room-3","id":28283011145,"position":10,"preview_image":{"aspect_ratio":1.5,"height":658,"width":987,"src":"\/\/saterdesign.com\/cdn\/shop\/products\/7062-great-room-3.jpeg?v=1547873917"},"aspect_ratio":1.5,"height":658,"media_type":"image","src":"\/\/saterdesign.com\/cdn\/shop\/products\/7062-great-room-3.jpeg?v=1547873917","width":987},{"alt":"Oak Island Home Plan 7062 Entry stairs","id":28283043913,"position":11,"preview_image":{"aspect_ratio":0.667,"height":897,"width":598,"src":"\/\/saterdesign.com\/cdn\/shop\/products\/7062-entry-stairs.jpeg?v=1547873917"},"aspect_ratio":0.667,"height":897,"media_type":"image","src":"\/\/saterdesign.com\/cdn\/shop\/products\/7062-entry-stairs.jpeg?v=1547873917","width":598},{"alt":"Oak Island Home Plan 7062 Kitchen-3","id":28283076681,"position":12,"preview_image":{"aspect_ratio":1.499,"height":667,"width":1000,"src":"\/\/saterdesign.com\/cdn\/shop\/products\/7062-kitchen-3.jpeg?v=1547873917"},"aspect_ratio":1.499,"height":667,"media_type":"image","src":"\/\/saterdesign.com\/cdn\/shop\/products\/7062-kitchen-3.jpeg?v=1547873917","width":1000},{"alt":"Oak Island Home Plan 7062 Kitchen-2","id":28283109449,"position":13,"preview_image":{"aspect_ratio":1.499,"height":667,"width":1000,"src":"\/\/saterdesign.com\/cdn\/shop\/products\/7062-kitchen-2.jpeg?v=1547873917"},"aspect_ratio":1.499,"height":667,"media_type":"image","src":"\/\/saterdesign.com\/cdn\/shop\/products\/7062-kitchen-2.jpeg?v=1547873917","width":1000},{"alt":"Oak Island Home Plan 7062 Kitchen-1","id":28283142217,"position":14,"preview_image":{"aspect_ratio":1.499,"height":667,"width":1000,"src":"\/\/saterdesign.com\/cdn\/shop\/products\/7062-kitchen-1.jpeg?v=1547873917"},"aspect_ratio":1.499,"height":667,"media_type":"image","src":"\/\/saterdesign.com\/cdn\/shop\/products\/7062-kitchen-1.jpeg?v=1547873917","width":1000},{"alt":"Oak Island Home Plan 7062 Dining room","id":28283174985,"position":15,"preview_image":{"aspect_ratio":1.499,"height":667,"width":1000,"src":"\/\/saterdesign.com\/cdn\/shop\/products\/7062-dining-room.jpeg?v=1547873917"},"aspect_ratio":1.499,"height":667,"media_type":"image","src":"\/\/saterdesign.com\/cdn\/shop\/products\/7062-dining-room.jpeg?v=1547873917","width":1000},{"alt":"Oak Island Home Plan 7062 Guest suite","id":28283207753,"position":16,"preview_image":{"aspect_ratio":1.499,"height":725,"width":1087,"src":"\/\/saterdesign.com\/cdn\/shop\/products\/7062-guest-suite.jpeg?v=1547873917"},"aspect_ratio":1.499,"height":725,"media_type":"image","src":"\/\/saterdesign.com\/cdn\/shop\/products\/7062-guest-suite.jpeg?v=1547873917","width":1087},{"alt":"Oak Island Home Plan 7062 Master Bath","id":28283240521,"position":17,"preview_image":{"aspect_ratio":0.667,"height":897,"width":598,"src":"\/\/saterdesign.com\/cdn\/shop\/products\/7062-master-bath.jpeg?v=1547873917"},"aspect_ratio":0.667,"height":897,"media_type":"image","src":"\/\/saterdesign.com\/cdn\/shop\/products\/7062-master-bath.jpeg?v=1547873917","width":598},{"alt":"Oak Island Home Plan 7062 Rear exterior 2","id":28283273289,"position":18,"preview_image":{"aspect_ratio":1.501,"height":733,"width":1100,"src":"\/\/saterdesign.com\/cdn\/shop\/products\/7062-rear-exterior-2.jpeg?v=1547873917"},"aspect_ratio":1.501,"height":733,"media_type":"image","src":"\/\/saterdesign.com\/cdn\/shop\/products\/7062-rear-exterior-2.jpeg?v=1547873917","width":1100},{"alt":"Oak Island Home Plan 7062 Front Elevation","id":28283306057,"position":19,"preview_image":{"aspect_ratio":1.501,"height":705,"width":1058,"src":"\/\/saterdesign.com\/cdn\/shop\/products\/7062-front-elevation.jpeg?v=1547873917"},"aspect_ratio":1.501,"height":705,"media_type":"image","src":"\/\/saterdesign.com\/cdn\/shop\/products\/7062-front-elevation.jpeg?v=1547873917","width":1058},{"alt":"Oak Island Home Main Level Floor Plan 7062","id":28283338825,"position":20,"preview_image":{"aspect_ratio":1.084,"height":715,"width":775,"src":"\/\/saterdesign.com\/cdn\/shop\/products\/7062_M.jpeg?v=1547873917"},"aspect_ratio":1.084,"height":715,"media_type":"image","src":"\/\/saterdesign.com\/cdn\/shop\/products\/7062_M.jpeg?v=1547873917","width":775},{"alt":"Oak Island Home Upper Level Floor Plan 7062","id":28283371593,"position":21,"preview_image":{"aspect_ratio":1.177,"height":654,"width":770,"src":"\/\/saterdesign.com\/cdn\/shop\/products\/7062_U.jpeg?v=1547873917"},"aspect_ratio":1.177,"height":654,"media_type":"image","src":"\/\/saterdesign.com\/cdn\/shop\/products\/7062_U.jpeg?v=1547873917","width":770}],"requires_selling_plan":false,"selling_plan_groups":[],"content":"\u003cp\u003eStyle and elegance are found in the Oak Island window dormers, mirrored stone chimneys and split-shake tile roof. The exterior of the Oak Island home is largely covered in stone, adding a rustic appeal. The partial wraparound front porch features a wood ceiling and plenty of space for welcoming guests.\u003c\/p\u003e\n\u003cp\u003eA big, welcoming great room—with multiple sets of French doors—leading out to a secluded back porch, features built-ins and open access to the kitchen and nook. Lots of counter space and a large island round out the kitchen and the bay windows in the nook area give the room a much more open feel. A soaring coffered ceiling tops the great room. Built in cabinets with decorative arches flank the stone fireplace. A wet bar is nestled in the corner of the room and allows access to drinks and snacks without accessing the kitchen.\u003c\/p\u003e\n\u003cp\u003eA convenient powder room in the hall leads to double doors that access the master retreat, which also reveals private access to a large study, both with beautiful tray ceilings. His and hers walk in closets add extra storage space to the master suite. The master bath has a large whirlpool soaking tub as well as a corner walk in shower and separate water closet.\u003c\/p\u003e\n\u003cp\u003eUpstairs, two guest bedrooms, each with large baths and walk-in closets, adjoin the bonus room via a catwalk which is open to below overlooking the great room. Both of the upstairs bedrooms have french doors that lead out to a private rear deck. The Oak Island house plan has 3509 square feet of living area, and it has three bedrooms and three and 1\/2 bathrooms. The Oak Island home plan is available in a crawlspace foundation.\u003c\/p\u003e\n\u003cp\u003eAre you interested in having a \u003ca title=\"The Sater Group\" href=\"http:\/\/satergroup.com\" target=\"_blank\" rel=\"noopener noreferrer\"\u003ecustom home plan\u003c\/a\u003e designed just for you? Then please visit \u003ca title=\"The Sater Group\" href=\"http:\/\/satergroup.com\" target=\"_blank\" rel=\"noopener noreferrer\"\u003eSater Group, Inc.\u003c\/a\u003e and see how we can design the home of your dreams.\u003c\/p\u003e"}