We Will Match All Plan Sale Prices

0

Your Cart is Empty

Photographed homes may have been modified from original plan.

8003-pdf

Alessandra House Plan

3956 sq. ft. Total Living  |   4 Bedrooms  |  3 Full Baths
Select to Purchase
Add to Wishlist

House Plan Specifications

  • Total Living:  3956 sq. ft.
  • 1st Floor:  2829 sq. ft.
  • 2nd Floor:  1127 sq. ft.
  • Bedrooms:  4
  • Bathrooms:  3
  • Half Baths:  1
  • Width of House:  85 ft. 0 in.
  • Depth of House:  76 ft. 2 in.
  • Foundation:  Stem Wall Slab
  • Exterior Wall:  Wood 2x6
  • Stories:  2
  • Roof Pitch:  10/12
  • Garage Bays:  3
  • Garage Load:  Side/Swing
  • Garage:  800 sq. ft.
  • Deck:  166 sq. ft.
  • Entry:  171 sq. ft.
  • Veranda:  714 sq. ft.
  • Total Area:  5807 sq. ft.
  • Building Height:  39 ft. 4 in.

House Plan Features

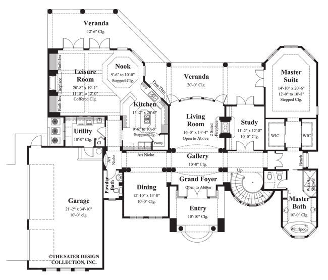
alessandra-main level floor plan #8003
alessandra-upper level floor plan-#8003

Customer Images

Photographed homes may have been modified from original plan.

What is in a Set of Plans?

Find out what we include in a set of house plans.

All Plans Need Engineering

Our plans do not include engineering for any specific site. Because of the great differences in geography and climate, each state, or municipality may have its own building regulations. Your plans will likely need site specific engineering in order to comply with those local requirements, therefore, we always recommend that you have the plans reviewed by a local structural engineer for compliance.

Want to Modify This Plan?

Click here to fill out a Modification Application.

We are experiencing an extremely high volume of modifications. We are working as fast as we can, however the time frame for modifications has been extended to a minimum of 10 weeks. At this time, we cannot guarantee any special time-frames. We apologize for the inconvenience.

Plan Options can increase the time it takes to process the house plans for delivery. If you have any questions, please contact us.

{"id":4264299719,"title":"Alessandra House Plan","handle":"alessandra-home-plan","description":"\u003cp\u003eMassive square columns frame a spectacular portico and pedimented window above the entry of the Alessandra home plan, a romantic villa. This plan is influenced by renaissance forms and an elegant introduction to its splendid and livable interior. Well-defined formal rooms designed for planned events offer both intimacy and grandeur. The casual zone of the Alessandra provides a lose-the-shoes atmosphere that's deeply relaxing.\u003c\/p\u003e\n\u003cp\u003eDefined by a series of sculpted arches, the central corridor extends the plan's sight lines to the leisure and master wings, and accepts sunlight through a turret of tall windows. Double doors lead from the stair hall to a quiet study, which shares a double sided see through fireplace with the living room and opens to the veranda.\u003c\/p\u003e\n\u003cp\u003eThe kitchen of the Alessandra plan has a pass-through to the veranda which is perfect for entertaining. There is a large center island for additional counter space. The additional curved bar offers additional seating. The corner walk in pantry provides for plenty of storage space. The open concept from the kitchen into the breakfast nook and leisure room is great for parties and get togethers with friends and family. A second fireplace in the leisure room offers warmth all the way through to the nook and kitchen.\u003c\/p\u003e\n\u003cp\u003eOn the opposite wing is the master suite. Double doors lead into the hall where his and hers walk in closets provide ample storage for the homeowners. The master bathroom contains a water closet with toilet and bidet. There is a large walk in shower and at the end of the room is a Whirlpool soaking tub looking out to the garden through the three sided bay window. On the upper level, a balcony hall benefits from windows to the front and rear of the Alessandra plan, connecting secondary and guest quarters that boast private decks for each suite.\u003c\/p\u003e\n\u003cp\u003eThe house plan contains 3956 square feet of living area and it has four bedrooms with three and 1\/2 baths. The plan sits on a slab\/stem wall foundation.\u003c\/p\u003e\n\u003cp\u003eAre you interested in having a \u003ca title=\"The Sater Group\" href=\"http:\/\/satergroup.com\" target=\"_blank\" rel=\"noopener noreferrer\"\u003ecustom home plan\u003c\/a\u003e designed just for you? Then please visit \u003ca title=\"The Sater Group\" href=\"http:\/\/satergroup.com\" target=\"_blank\" rel=\"noopener noreferrer\"\u003eSater Group, Inc.\u003c\/a\u003e and learn how we can design something just for you.\u003c\/p\u003e","published_at":"2016-02-02T13:44:00-05:00","created_at":"2016-02-02T13:44:04-05:00","vendor":"Sater Design","type":"Home Plans","tags":["930-260","Basement Options","Baths_3","Bedrooms_4","Exterior Wall_Wood 2x6","Feature_Fireplace","Feature_His and Hers Closets","Feature_Master Suite Main Floor","Feature_Office \/ Study","Feature_Walk-in Pantry","Foundation_Optional Basements","Foundation_Stem Wall Slab","Garage Bays_3","Garage Load_Side\/Swing","Half-Bath_1","Roof Pitch_10\/12","Stories_2"],"price":269000,"price_min":269000,"price_max":454900,"available":true,"price_varies":true,"compare_at_price":null,"compare_at_price_min":0,"compare_at_price_max":0,"compare_at_price_varies":false,"variants":[{"id":14590894279,"title":"Electronic PDF","option1":"Electronic PDF","option2":null,"option3":null,"sku":"8003-pdf","requires_shipping":false,"taxable":true,"featured_image":null,"available":true,"name":"Alessandra House Plan - Electronic PDF","public_title":"Electronic PDF","options":["Electronic PDF"],"price":269000,"weight":0,"compare_at_price":null,"inventory_quantity":0,"inventory_management":null,"inventory_policy":"deny","barcode":"","requires_selling_plan":false,"selling_plan_allocations":[]},{"id":14590894215,"title":"Electronic CAD","option1":"Electronic CAD","option2":null,"option3":null,"sku":"8003-cad","requires_shipping":false,"taxable":true,"featured_image":null,"available":true,"name":"Alessandra House Plan - Electronic CAD","public_title":"Electronic CAD","options":["Electronic CAD"],"price":454900,"weight":3130,"compare_at_price":null,"inventory_quantity":-1,"inventory_management":null,"inventory_policy":"deny","barcode":null,"requires_selling_plan":false,"selling_plan_allocations":[]}],"images":["\/\/saterdesign.com\/cdn\/shop\/products\/8003_FXC.jpeg?v=1547873500","\/\/saterdesign.com\/cdn\/shop\/products\/8003_RXC.jpeg?v=1547873500","\/\/saterdesign.com\/cdn\/shop\/products\/8003_M.jpeg?v=1547873500","\/\/saterdesign.com\/cdn\/shop\/products\/8003_U.gif?v=1547873500"],"featured_image":"\/\/saterdesign.com\/cdn\/shop\/products\/8003_FXC.jpeg?v=1547873500","options":["Select to Purchase"],"media":[{"alt":"Alessandra-Front Elevation-Plan #8003","id":28279537737,"position":1,"preview_image":{"aspect_ratio":1.845,"height":420,"width":775,"src":"\/\/saterdesign.com\/cdn\/shop\/products\/8003_FXC.jpeg?v=1547873500"},"aspect_ratio":1.845,"height":420,"media_type":"image","src":"\/\/saterdesign.com\/cdn\/shop\/products\/8003_FXC.jpeg?v=1547873500","width":775},{"alt":"Alessandra-Rear Elevation-Plan #8003","id":28279570505,"position":2,"preview_image":{"aspect_ratio":1.266,"height":474,"width":600,"src":"\/\/saterdesign.com\/cdn\/shop\/products\/8003_RXC.jpeg?v=1547873500"},"aspect_ratio":1.266,"height":474,"media_type":"image","src":"\/\/saterdesign.com\/cdn\/shop\/products\/8003_RXC.jpeg?v=1547873500","width":600},{"alt":"Alessandra-Main Level Floor Plan #8003","id":28279603273,"position":3,"preview_image":{"aspect_ratio":1.171,"height":555,"width":650,"src":"\/\/saterdesign.com\/cdn\/shop\/products\/8003_M.jpeg?v=1547873500"},"aspect_ratio":1.171,"height":555,"media_type":"image","src":"\/\/saterdesign.com\/cdn\/shop\/products\/8003_M.jpeg?v=1547873500","width":650},{"alt":"Alessandra-Upper Level Floor Plan-#8003","id":28279636041,"position":4,"preview_image":{"aspect_ratio":1.837,"height":246,"width":452,"src":"\/\/saterdesign.com\/cdn\/shop\/products\/8003_U.gif?v=1547873500"},"aspect_ratio":1.837,"height":246,"media_type":"image","src":"\/\/saterdesign.com\/cdn\/shop\/products\/8003_U.gif?v=1547873500","width":452}],"requires_selling_plan":false,"selling_plan_groups":[],"content":"\u003cp\u003eMassive square columns frame a spectacular portico and pedimented window above the entry of the Alessandra home plan, a romantic villa. This plan is influenced by renaissance forms and an elegant introduction to its splendid and livable interior. Well-defined formal rooms designed for planned events offer both intimacy and grandeur. The casual zone of the Alessandra provides a lose-the-shoes atmosphere that's deeply relaxing.\u003c\/p\u003e\n\u003cp\u003eDefined by a series of sculpted arches, the central corridor extends the plan's sight lines to the leisure and master wings, and accepts sunlight through a turret of tall windows. Double doors lead from the stair hall to a quiet study, which shares a double sided see through fireplace with the living room and opens to the veranda.\u003c\/p\u003e\n\u003cp\u003eThe kitchen of the Alessandra plan has a pass-through to the veranda which is perfect for entertaining. There is a large center island for additional counter space. The additional curved bar offers additional seating. The corner walk in pantry provides for plenty of storage space. The open concept from the kitchen into the breakfast nook and leisure room is great for parties and get togethers with friends and family. A second fireplace in the leisure room offers warmth all the way through to the nook and kitchen.\u003c\/p\u003e\n\u003cp\u003eOn the opposite wing is the master suite. Double doors lead into the hall where his and hers walk in closets provide ample storage for the homeowners. The master bathroom contains a water closet with toilet and bidet. There is a large walk in shower and at the end of the room is a Whirlpool soaking tub looking out to the garden through the three sided bay window. On the upper level, a balcony hall benefits from windows to the front and rear of the Alessandra plan, connecting secondary and guest quarters that boast private decks for each suite.\u003c\/p\u003e\n\u003cp\u003eThe house plan contains 3956 square feet of living area and it has four bedrooms with three and 1\/2 baths. The plan sits on a slab\/stem wall foundation.\u003c\/p\u003e\n\u003cp\u003eAre you interested in having a \u003ca title=\"The Sater Group\" href=\"http:\/\/satergroup.com\" target=\"_blank\" rel=\"noopener noreferrer\"\u003ecustom home plan\u003c\/a\u003e designed just for you? Then please visit \u003ca title=\"The Sater Group\" href=\"http:\/\/satergroup.com\" target=\"_blank\" rel=\"noopener noreferrer\"\u003eSater Group, Inc.\u003c\/a\u003e and learn how we can design something just for you.\u003c\/p\u003e"}