We Will Match All Plan Sale Prices

0

Your Cart is Empty

Photographed homes may have been modified from original plan.

7094-pdf

Edelweiss

3786 sq. ft. Total Living  |   3 Bedrooms  |  4 Full Baths
Select to Purchase
Add to Wishlist
Working Drawings will be available to ship about 4 weeks from date of purchase.

Please contact us for more information.

House Plan Specifications

  • Total Living:  3786 sq. ft.
  • 1st Floor:  3786 sq. ft.
  • Bedrooms:  3
  • Bathrooms:  4
  • Half Baths:  1
  • Width of House:  147 ft. 3 in.
  • Depth of House:  104 ft. 6 in.
  • Foundation:  Stem Wall Slab
  • Exterior Wall:  Wood 2x6
  • Exterior Finish:  Wood Timber Veneer
  • Roof Material:  Metal
  • Stories:  1
  • Roof Pitch:  6/12
  • Garage Bays:  3
  • Garage Load:  Side/Swing
  • Garage:  1159 sq. ft.
  • Master Courtyard:  337 sq. ft.
  • Portico:  497 sq. ft.
  • Veranda:  896 sq. ft.
  • Total Area:  6675 sq. ft.
  • Building Height:  24 ft. 8 in.

House Plan Features

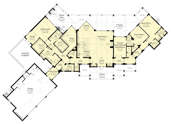
7094 floor plan

What is in a Set of Plans?

Find out what we include in a set of house plans.

All Plans Need Engineering

Our plans do not include engineering for any specific site. Because of the great differences in geography and climate, each state, or municipality may have its own building regulations. Your plans will likely need site specific engineering in order to comply with those local requirements, therefore, we always recommend that you have the plans reviewed by a local structural engineer for compliance.

Want to Modify This Plan?

Click here to fill out a Modification Application.

We are experiencing an extremely high volume of modifications. We are working as fast as we can, however the time frame for modifications has been extended to a minimum of 10 weeks. At this time, we cannot guarantee any special time-frames. We apologize for the inconvenience.

Plan Options can increase the time it takes to process the house plans for delivery. If you have any questions, please contact us.

{"id":6808452595785,"title":"Edelweiss","handle":"edelweiss","description":"\u003cp class=\"p1\" data-mce-fragment=\"1\"\u003eThe Edelweiss home plan is a modern take on a \u003ca href=\"https:\/\/saterdesign.com\/collections\/mountain-home-plans\" target=\"_blank\" title=\"mountain home plans\" rel=\"noopener noreferrer\"\u003erustic mountain lodge\u003c\/a\u003e or log cabin complete with every possible luxury. Its hewn timbered cladding with mortared chinking and standing seam metal roofing give it a distinctively rustic modern appearance. It can be equally at home in the \u003ca href=\"https:\/\/saterdesign.com\/collections\/golf-water-view-oriented-house-plans\" target=\"_blank\" title=\"view oriented house plans\" rel=\"noopener noreferrer\"\u003emountains, by a lake\u003c\/a\u003e or in a luxury community. Nothing is forgotten in this thoughtful design. This \u003ca href=\"https:\/\/saterdesign.com\/collections\/ranch-house-plans\" target=\"_blank\" title=\"ranch house plans\" rel=\"noopener noreferrer\"\u003eranch style layout\u003c\/a\u003e gives every room a commanding view. The timber framed gables extend front to back of this home and from side to side, creating a stunning intersecting ceiling detail in the Great Room. A \u003ca href=\"https:\/\/saterdesign.com\/collections\/wet-bar-equipped-house-plans\" target=\"_blank\" title=\"house plans with wet bar\" rel=\"noopener noreferrer\"\u003ewet bar\u003c\/a\u003e is conveniently located in the front. The island Kitchen overlooks the Great Room and the Dining Room that is positioned diagonally to maximize views and glass. Nearby is a walk-in pantry and powder bath. Each end of the Foyer extends into flowing galleries to access the master and guest wings of the home.\u003c\/p\u003e\n\u003cp class=\"p1\" data-mce-fragment=\"1\"\u003eThe gallery to the left accesses the Master Suite, Study, Utility Room and garage of the home. The latter accessed via a glass breezeway. The luxurious Master has a sitting alcove as well as his and her walk-in closets and baths. Just outside the Master is the Veranda with a \u003ca href=\"https:\/\/saterdesign.com\/collections\/outdoor-fireplace-is-really-living\" target=\"_blank\" title=\"home plans with outdoor fireplaces\" rel=\"noopener noreferrer\"\u003estone fireplace\u003c\/a\u003e to enjoy cool evenings. The opposite end looks out onto a private garden area that is shared by the her bath. The Study has built-ins and views to the Veranda. The three-car garage has plenty of storage and contemporary glass garage doors (optional).\u003c\/p\u003e\n\u003cp class=\"p1\" data-mce-fragment=\"1\"\u003eThe other gallery leads to an exercise room, which could easily become a game room or fourth bedroom. Beyond that are two spacious Guest Rooms. Each guest room has walk-in closets and private baths. This wing also features ample walk-in storage closets.\u003c\/p\u003e\n\u003cp class=\"p1\" data-mce-fragment=\"1\"\u003eThe Edelweiss floor plan contains 3786 square feet of living area and has three bedrooms and 4.5 baths.\u003c\/p\u003e","published_at":"2022-08-26T16:34:36-04:00","created_at":"2022-08-05T16:50:57-04:00","vendor":"Sater Design Collection","type":"Home Plans","tags":["Baths_4","Bedrooms_3","Exterior Finish_Wood Timber Veneer","Exterior Wall_Wood 2x6","Feature_Built-in Grill","Feature_Exercise Room","Feature_Fireplace","Feature_Great Room","Feature_His and Hers Closets","Feature_Master Suite Sitting Area","Feature_Office \/ Study","Feature_Outdoor Fireplace","Feature_Outdoor Kitchen","Feature_Walk-in Pantry","Feature_Wet Bar","Foundation_Stem Wall Slab","Garage Bays_3","Garage Load_Side\/Swing","Half-Bath_1","Roof Material_Metal","Roof Pitch_6\/12","Stories_1","Two-Weeks"],"price":257400,"price_min":257400,"price_max":435400,"available":true,"price_varies":true,"compare_at_price":null,"compare_at_price_min":0,"compare_at_price_max":0,"compare_at_price_varies":false,"variants":[{"id":40178878840905,"title":"Electronic PDF","option1":"Electronic PDF","option2":null,"option3":null,"sku":"7094-pdf","requires_shipping":false,"taxable":true,"featured_image":null,"available":true,"name":"Edelweiss - Electronic PDF","public_title":"Electronic PDF","options":["Electronic PDF"],"price":257400,"weight":0,"compare_at_price":null,"inventory_quantity":0,"inventory_management":null,"inventory_policy":"deny","barcode":"","requires_selling_plan":false,"selling_plan_allocations":[]},{"id":40178878873673,"title":"Electronic CAD","option1":"Electronic CAD","option2":null,"option3":null,"sku":"7094-cad","requires_shipping":false,"taxable":true,"featured_image":null,"available":true,"name":"Edelweiss - Electronic CAD","public_title":"Electronic CAD","options":["Electronic CAD"],"price":435400,"weight":3175,"compare_at_price":null,"inventory_quantity":0,"inventory_management":null,"inventory_policy":"deny","barcode":"","requires_selling_plan":false,"selling_plan_allocations":[]}],"images":["\/\/saterdesign.com\/cdn\/shop\/products\/7094-Main-Image.jpg?v=1661536063","\/\/saterdesign.com\/cdn\/shop\/products\/7094-SALESPLAN.jpg?v=1661536063","\/\/saterdesign.com\/cdn\/shop\/products\/DSC0439c.jpg?v=1661536063","\/\/saterdesign.com\/cdn\/shop\/products\/IMG_8134.jpg?v=1661536063","\/\/saterdesign.com\/cdn\/shop\/products\/IMG_8137c.jpg?v=1661536063","\/\/saterdesign.com\/cdn\/shop\/products\/DSC0590.jpg?v=1661536063","\/\/saterdesign.com\/cdn\/shop\/products\/DSC0605.jpg?v=1661536063","\/\/saterdesign.com\/cdn\/shop\/products\/DSC0608.jpg?v=1661536063","\/\/saterdesign.com\/cdn\/shop\/products\/DSC0307.jpg?v=1661536063","\/\/saterdesign.com\/cdn\/shop\/products\/DSC0313.jpg?v=1661536063","\/\/saterdesign.com\/cdn\/shop\/products\/DSC0316.jpg?v=1661536063","\/\/saterdesign.com\/cdn\/shop\/products\/DSC0319.jpg?v=1661536063","\/\/saterdesign.com\/cdn\/shop\/products\/DSC0327.jpg?v=1661536063","\/\/saterdesign.com\/cdn\/shop\/products\/DSC0339.jpg?v=1661536063","\/\/saterdesign.com\/cdn\/shop\/products\/DSC0362.jpg?v=1661536063","\/\/saterdesign.com\/cdn\/shop\/products\/DSC0374.jpg?v=1661536063","\/\/saterdesign.com\/cdn\/shop\/products\/DSC0383.jpg?v=1661536063","\/\/saterdesign.com\/cdn\/shop\/products\/DSC0446.jpg?v=1661536063","\/\/saterdesign.com\/cdn\/shop\/products\/DSC0494.jpg?v=1661536063","\/\/saterdesign.com\/cdn\/shop\/products\/DSC0497.jpg?v=1661536063","\/\/saterdesign.com\/cdn\/shop\/products\/DSC0545.jpg?v=1661536063","\/\/saterdesign.com\/cdn\/shop\/products\/DSC0551.jpg?v=1661536063","\/\/saterdesign.com\/cdn\/shop\/products\/DSC0563.jpg?v=1661536063","\/\/saterdesign.com\/cdn\/shop\/products\/DSC0575.jpg?v=1661536063","\/\/saterdesign.com\/cdn\/shop\/products\/DSC0557.jpg?v=1661536063","\/\/saterdesign.com\/cdn\/shop\/products\/DSC0454.jpg?v=1661536063","\/\/saterdesign.com\/cdn\/shop\/products\/DSC0458.jpg?v=1661536063","\/\/saterdesign.com\/cdn\/shop\/products\/DSC0461.jpg?v=1661536063","\/\/saterdesign.com\/cdn\/shop\/products\/DSC0464.jpg?v=1661536063","\/\/saterdesign.com\/cdn\/shop\/products\/DSC0473.jpg?v=1661536063","\/\/saterdesign.com\/cdn\/shop\/products\/DSC0477.jpg?v=1661536063","\/\/saterdesign.com\/cdn\/shop\/products\/DSC0503.jpg?v=1661536054","\/\/saterdesign.com\/cdn\/shop\/products\/DSC0509.jpg?v=1661536054","\/\/saterdesign.com\/cdn\/shop\/products\/DSC0512.jpg?v=1661536054","\/\/saterdesign.com\/cdn\/shop\/products\/DSC0518.jpg?v=1661536054","\/\/saterdesign.com\/cdn\/shop\/products\/DSC0587.jpg?v=1661536005"],"featured_image":"\/\/saterdesign.com\/cdn\/shop\/products\/7094-Main-Image.jpg?v=1661536063","options":["Select to Purchase"],"media":[{"alt":"Edelweiss Sater Design Collection","id":21964617547849,"position":1,"preview_image":{"aspect_ratio":1.845,"height":555,"width":1024,"src":"\/\/saterdesign.com\/cdn\/shop\/products\/7094-Main-Image.jpg?v=1661536063"},"aspect_ratio":1.845,"height":555,"media_type":"image","src":"\/\/saterdesign.com\/cdn\/shop\/products\/7094-Main-Image.jpg?v=1661536063","width":1024},{"alt":"7094 floor plan","id":21863024132169,"position":2,"preview_image":{"aspect_ratio":1.384,"height":2145,"width":2968,"src":"\/\/saterdesign.com\/cdn\/shop\/products\/7094-SALESPLAN.jpg?v=1661536063"},"aspect_ratio":1.384,"height":2145,"media_type":"image","src":"\/\/saterdesign.com\/cdn\/shop\/products\/7094-SALESPLAN.jpg?v=1661536063","width":2968},{"alt":"Edelweiss Sater Design Collection","id":21964616794185,"position":3,"preview_image":{"aspect_ratio":1.497,"height":684,"width":1024,"src":"\/\/saterdesign.com\/cdn\/shop\/products\/DSC0439c.jpg?v=1661536063"},"aspect_ratio":1.497,"height":684,"media_type":"image","src":"\/\/saterdesign.com\/cdn\/shop\/products\/DSC0439c.jpg?v=1661536063","width":1024},{"alt":"Edelweiss Sater Design Collection","id":21964617580617,"position":4,"preview_image":{"aspect_ratio":1.365,"height":750,"width":1024,"src":"\/\/saterdesign.com\/cdn\/shop\/products\/IMG_8134.jpg?v=1661536063"},"aspect_ratio":1.365,"height":750,"media_type":"image","src":"\/\/saterdesign.com\/cdn\/shop\/products\/IMG_8134.jpg?v=1661536063","width":1024},{"alt":"Edelweiss Sater Design Collection","id":21964617613385,"position":5,"preview_image":{"aspect_ratio":1.838,"height":557,"width":1024,"src":"\/\/saterdesign.com\/cdn\/shop\/products\/IMG_8137c.jpg?v=1661536063"},"aspect_ratio":1.838,"height":557,"media_type":"image","src":"\/\/saterdesign.com\/cdn\/shop\/products\/IMG_8137c.jpg?v=1661536063","width":1024},{"alt":"Edelweiss Sater Design Collection","id":21964617449545,"position":6,"preview_image":{"aspect_ratio":1.499,"height":683,"width":1024,"src":"\/\/saterdesign.com\/cdn\/shop\/products\/DSC0590.jpg?v=1661536063"},"aspect_ratio":1.499,"height":683,"media_type":"image","src":"\/\/saterdesign.com\/cdn\/shop\/products\/DSC0590.jpg?v=1661536063","width":1024},{"alt":"Edelweiss Sater Design Collection","id":21964617482313,"position":7,"preview_image":{"aspect_ratio":1.497,"height":684,"width":1024,"src":"\/\/saterdesign.com\/cdn\/shop\/products\/DSC0605.jpg?v=1661536063"},"aspect_ratio":1.497,"height":684,"media_type":"image","src":"\/\/saterdesign.com\/cdn\/shop\/products\/DSC0605.jpg?v=1661536063","width":1024},{"alt":"Edelweiss Sater Design Collection","id":21964617515081,"position":8,"preview_image":{"aspect_ratio":1.497,"height":684,"width":1024,"src":"\/\/saterdesign.com\/cdn\/shop\/products\/DSC0608.jpg?v=1661536063"},"aspect_ratio":1.497,"height":684,"media_type":"image","src":"\/\/saterdesign.com\/cdn\/shop\/products\/DSC0608.jpg?v=1661536063","width":1024},{"alt":"Edelweiss Sater Design Collection","id":21964616499273,"position":9,"preview_image":{"aspect_ratio":0.668,"height":1024,"width":684,"src":"\/\/saterdesign.com\/cdn\/shop\/products\/DSC0307.jpg?v=1661536063"},"aspect_ratio":0.668,"height":1024,"media_type":"image","src":"\/\/saterdesign.com\/cdn\/shop\/products\/DSC0307.jpg?v=1661536063","width":684},{"alt":"Edelweiss Sater Design Collection","id":21964616532041,"position":10,"preview_image":{"aspect_ratio":0.668,"height":1024,"width":684,"src":"\/\/saterdesign.com\/cdn\/shop\/products\/DSC0313.jpg?v=1661536063"},"aspect_ratio":0.668,"height":1024,"media_type":"image","src":"\/\/saterdesign.com\/cdn\/shop\/products\/DSC0313.jpg?v=1661536063","width":684},{"alt":"Edelweiss Sater Design Collection","id":21964616564809,"position":11,"preview_image":{"aspect_ratio":0.668,"height":1024,"width":684,"src":"\/\/saterdesign.com\/cdn\/shop\/products\/DSC0316.jpg?v=1661536063"},"aspect_ratio":0.668,"height":1024,"media_type":"image","src":"\/\/saterdesign.com\/cdn\/shop\/products\/DSC0316.jpg?v=1661536063","width":684},{"alt":"Edelweiss Sater Design Collection","id":21964616597577,"position":12,"preview_image":{"aspect_ratio":0.668,"height":1024,"width":684,"src":"\/\/saterdesign.com\/cdn\/shop\/products\/DSC0319.jpg?v=1661536063"},"aspect_ratio":0.668,"height":1024,"media_type":"image","src":"\/\/saterdesign.com\/cdn\/shop\/products\/DSC0319.jpg?v=1661536063","width":684},{"alt":"Edelweiss Sater Design Collection","id":21964616630345,"position":13,"preview_image":{"aspect_ratio":0.668,"height":1024,"width":684,"src":"\/\/saterdesign.com\/cdn\/shop\/products\/DSC0327.jpg?v=1661536063"},"aspect_ratio":0.668,"height":1024,"media_type":"image","src":"\/\/saterdesign.com\/cdn\/shop\/products\/DSC0327.jpg?v=1661536063","width":684},{"alt":"Edelweiss Sater Design Collection","id":21964616663113,"position":14,"preview_image":{"aspect_ratio":0.668,"height":1024,"width":684,"src":"\/\/saterdesign.com\/cdn\/shop\/products\/DSC0339.jpg?v=1661536063"},"aspect_ratio":0.668,"height":1024,"media_type":"image","src":"\/\/saterdesign.com\/cdn\/shop\/products\/DSC0339.jpg?v=1661536063","width":684},{"alt":"Edelweiss Sater Design Collection","id":21964616695881,"position":15,"preview_image":{"aspect_ratio":0.668,"height":1024,"width":684,"src":"\/\/saterdesign.com\/cdn\/shop\/products\/DSC0362.jpg?v=1661536063"},"aspect_ratio":0.668,"height":1024,"media_type":"image","src":"\/\/saterdesign.com\/cdn\/shop\/products\/DSC0362.jpg?v=1661536063","width":684},{"alt":"Edelweiss Sater Design Collection","id":21964616728649,"position":16,"preview_image":{"aspect_ratio":1.497,"height":684,"width":1024,"src":"\/\/saterdesign.com\/cdn\/shop\/products\/DSC0374.jpg?v=1661536063"},"aspect_ratio":1.497,"height":684,"media_type":"image","src":"\/\/saterdesign.com\/cdn\/shop\/products\/DSC0374.jpg?v=1661536063","width":1024},{"alt":"Edelweiss Sater Design Collection","id":21964616761417,"position":17,"preview_image":{"aspect_ratio":1.497,"height":684,"width":1024,"src":"\/\/saterdesign.com\/cdn\/shop\/products\/DSC0383.jpg?v=1661536063"},"aspect_ratio":1.497,"height":684,"media_type":"image","src":"\/\/saterdesign.com\/cdn\/shop\/products\/DSC0383.jpg?v=1661536063","width":1024},{"alt":"Edelweiss Sater Design Collection","id":21964616826953,"position":18,"preview_image":{"aspect_ratio":0.668,"height":1024,"width":684,"src":"\/\/saterdesign.com\/cdn\/shop\/products\/DSC0446.jpg?v=1661536063"},"aspect_ratio":0.668,"height":1024,"media_type":"image","src":"\/\/saterdesign.com\/cdn\/shop\/products\/DSC0446.jpg?v=1661536063","width":684},{"alt":"Edelweiss Sater Design Collection","id":21964617056329,"position":19,"preview_image":{"aspect_ratio":0.668,"height":1024,"width":684,"src":"\/\/saterdesign.com\/cdn\/shop\/products\/DSC0494.jpg?v=1661536063"},"aspect_ratio":0.668,"height":1024,"media_type":"image","src":"\/\/saterdesign.com\/cdn\/shop\/products\/DSC0494.jpg?v=1661536063","width":684},{"alt":"Edelweiss Sater Design Collection","id":21964617089097,"position":20,"preview_image":{"aspect_ratio":0.667,"height":1024,"width":683,"src":"\/\/saterdesign.com\/cdn\/shop\/products\/DSC0497.jpg?v=1661536063"},"aspect_ratio":0.667,"height":1024,"media_type":"image","src":"\/\/saterdesign.com\/cdn\/shop\/products\/DSC0497.jpg?v=1661536063","width":683},{"alt":"Edelweiss Sater Design Collection","id":21964617252937,"position":21,"preview_image":{"aspect_ratio":1.497,"height":684,"width":1024,"src":"\/\/saterdesign.com\/cdn\/shop\/products\/DSC0545.jpg?v=1661536063"},"aspect_ratio":1.497,"height":684,"media_type":"image","src":"\/\/saterdesign.com\/cdn\/shop\/products\/DSC0545.jpg?v=1661536063","width":1024},{"alt":"Edelweiss Sater Design Collection","id":21964617285705,"position":22,"preview_image":{"aspect_ratio":1.497,"height":684,"width":1024,"src":"\/\/saterdesign.com\/cdn\/shop\/products\/DSC0551.jpg?v=1661536063"},"aspect_ratio":1.497,"height":684,"media_type":"image","src":"\/\/saterdesign.com\/cdn\/shop\/products\/DSC0551.jpg?v=1661536063","width":1024},{"alt":"Edelweiss Sater Design Collection","id":21964617351241,"position":23,"preview_image":{"aspect_ratio":0.668,"height":1024,"width":684,"src":"\/\/saterdesign.com\/cdn\/shop\/products\/DSC0563.jpg?v=1661536063"},"aspect_ratio":0.668,"height":1024,"media_type":"image","src":"\/\/saterdesign.com\/cdn\/shop\/products\/DSC0563.jpg?v=1661536063","width":684},{"alt":"Edelweiss Sater Design Collection","id":21964617384009,"position":24,"preview_image":{"aspect_ratio":1.497,"height":684,"width":1024,"src":"\/\/saterdesign.com\/cdn\/shop\/products\/DSC0575.jpg?v=1661536063"},"aspect_ratio":1.497,"height":684,"media_type":"image","src":"\/\/saterdesign.com\/cdn\/shop\/products\/DSC0575.jpg?v=1661536063","width":1024},{"alt":"Edelweiss Sater Design Collection","id":21964617318473,"position":25,"preview_image":{"aspect_ratio":1.497,"height":684,"width":1024,"src":"\/\/saterdesign.com\/cdn\/shop\/products\/DSC0557.jpg?v=1661536063"},"aspect_ratio":1.497,"height":684,"media_type":"image","src":"\/\/saterdesign.com\/cdn\/shop\/products\/DSC0557.jpg?v=1661536063","width":1024},{"alt":"Edelweiss Sater Design Collection","id":21964616859721,"position":26,"preview_image":{"aspect_ratio":1.497,"height":684,"width":1024,"src":"\/\/saterdesign.com\/cdn\/shop\/products\/DSC0454.jpg?v=1661536063"},"aspect_ratio":1.497,"height":684,"media_type":"image","src":"\/\/saterdesign.com\/cdn\/shop\/products\/DSC0454.jpg?v=1661536063","width":1024},{"alt":"Edelweiss Sater Design Collection","id":21964616892489,"position":27,"preview_image":{"aspect_ratio":1.497,"height":684,"width":1024,"src":"\/\/saterdesign.com\/cdn\/shop\/products\/DSC0458.jpg?v=1661536063"},"aspect_ratio":1.497,"height":684,"media_type":"image","src":"\/\/saterdesign.com\/cdn\/shop\/products\/DSC0458.jpg?v=1661536063","width":1024},{"alt":"Edelweiss Sater Design Collection","id":21964616925257,"position":28,"preview_image":{"aspect_ratio":0.668,"height":1024,"width":684,"src":"\/\/saterdesign.com\/cdn\/shop\/products\/DSC0461.jpg?v=1661536063"},"aspect_ratio":0.668,"height":1024,"media_type":"image","src":"\/\/saterdesign.com\/cdn\/shop\/products\/DSC0461.jpg?v=1661536063","width":684},{"alt":"Edelweiss Sater Design Collection","id":21964616958025,"position":29,"preview_image":{"aspect_ratio":0.668,"height":1024,"width":684,"src":"\/\/saterdesign.com\/cdn\/shop\/products\/DSC0464.jpg?v=1661536063"},"aspect_ratio":0.668,"height":1024,"media_type":"image","src":"\/\/saterdesign.com\/cdn\/shop\/products\/DSC0464.jpg?v=1661536063","width":684},{"alt":"Edelweiss Sater Design Collection","id":21964616990793,"position":30,"preview_image":{"aspect_ratio":1.497,"height":684,"width":1024,"src":"\/\/saterdesign.com\/cdn\/shop\/products\/DSC0473.jpg?v=1661536063"},"aspect_ratio":1.497,"height":684,"media_type":"image","src":"\/\/saterdesign.com\/cdn\/shop\/products\/DSC0473.jpg?v=1661536063","width":1024},{"alt":"Edelweiss Sater Design Collection","id":21964617023561,"position":31,"preview_image":{"aspect_ratio":1.497,"height":684,"width":1024,"src":"\/\/saterdesign.com\/cdn\/shop\/products\/DSC0477.jpg?v=1661536063"},"aspect_ratio":1.497,"height":684,"media_type":"image","src":"\/\/saterdesign.com\/cdn\/shop\/products\/DSC0477.jpg?v=1661536063","width":1024},{"alt":"Edelweiss Sater Design Collection","id":21964617121865,"position":32,"preview_image":{"aspect_ratio":0.668,"height":1024,"width":684,"src":"\/\/saterdesign.com\/cdn\/shop\/products\/DSC0503.jpg?v=1661536054"},"aspect_ratio":0.668,"height":1024,"media_type":"image","src":"\/\/saterdesign.com\/cdn\/shop\/products\/DSC0503.jpg?v=1661536054","width":684},{"alt":"Edelweiss Sater Design Collection","id":21964617154633,"position":33,"preview_image":{"aspect_ratio":0.668,"height":1024,"width":684,"src":"\/\/saterdesign.com\/cdn\/shop\/products\/DSC0509.jpg?v=1661536054"},"aspect_ratio":0.668,"height":1024,"media_type":"image","src":"\/\/saterdesign.com\/cdn\/shop\/products\/DSC0509.jpg?v=1661536054","width":684},{"alt":"Edelweiss Sater Design Collection","id":21964617187401,"position":34,"preview_image":{"aspect_ratio":0.668,"height":1024,"width":684,"src":"\/\/saterdesign.com\/cdn\/shop\/products\/DSC0512.jpg?v=1661536054"},"aspect_ratio":0.668,"height":1024,"media_type":"image","src":"\/\/saterdesign.com\/cdn\/shop\/products\/DSC0512.jpg?v=1661536054","width":684},{"alt":"Edelweiss Sater Design Collection","id":21964617220169,"position":35,"preview_image":{"aspect_ratio":0.668,"height":1024,"width":684,"src":"\/\/saterdesign.com\/cdn\/shop\/products\/DSC0518.jpg?v=1661536054"},"aspect_ratio":0.668,"height":1024,"media_type":"image","src":"\/\/saterdesign.com\/cdn\/shop\/products\/DSC0518.jpg?v=1661536054","width":684},{"alt":"Edelweiss Sater Design Collection","id":21964617416777,"position":36,"preview_image":{"aspect_ratio":0.668,"height":1024,"width":684,"src":"\/\/saterdesign.com\/cdn\/shop\/products\/DSC0587.jpg?v=1661536005"},"aspect_ratio":0.668,"height":1024,"media_type":"image","src":"\/\/saterdesign.com\/cdn\/shop\/products\/DSC0587.jpg?v=1661536005","width":684}],"requires_selling_plan":false,"selling_plan_groups":[],"content":"\u003cp class=\"p1\" data-mce-fragment=\"1\"\u003eThe Edelweiss home plan is a modern take on a \u003ca href=\"https:\/\/saterdesign.com\/collections\/mountain-home-plans\" target=\"_blank\" title=\"mountain home plans\" rel=\"noopener noreferrer\"\u003erustic mountain lodge\u003c\/a\u003e or log cabin complete with every possible luxury. Its hewn timbered cladding with mortared chinking and standing seam metal roofing give it a distinctively rustic modern appearance. It can be equally at home in the \u003ca href=\"https:\/\/saterdesign.com\/collections\/golf-water-view-oriented-house-plans\" target=\"_blank\" title=\"view oriented house plans\" rel=\"noopener noreferrer\"\u003emountains, by a lake\u003c\/a\u003e or in a luxury community. Nothing is forgotten in this thoughtful design. This \u003ca href=\"https:\/\/saterdesign.com\/collections\/ranch-house-plans\" target=\"_blank\" title=\"ranch house plans\" rel=\"noopener noreferrer\"\u003eranch style layout\u003c\/a\u003e gives every room a commanding view. The timber framed gables extend front to back of this home and from side to side, creating a stunning intersecting ceiling detail in the Great Room. A \u003ca href=\"https:\/\/saterdesign.com\/collections\/wet-bar-equipped-house-plans\" target=\"_blank\" title=\"house plans with wet bar\" rel=\"noopener noreferrer\"\u003ewet bar\u003c\/a\u003e is conveniently located in the front. The island Kitchen overlooks the Great Room and the Dining Room that is positioned diagonally to maximize views and glass. Nearby is a walk-in pantry and powder bath. Each end of the Foyer extends into flowing galleries to access the master and guest wings of the home.\u003c\/p\u003e\n\u003cp class=\"p1\" data-mce-fragment=\"1\"\u003eThe gallery to the left accesses the Master Suite, Study, Utility Room and garage of the home. The latter accessed via a glass breezeway. The luxurious Master has a sitting alcove as well as his and her walk-in closets and baths. Just outside the Master is the Veranda with a \u003ca href=\"https:\/\/saterdesign.com\/collections\/outdoor-fireplace-is-really-living\" target=\"_blank\" title=\"home plans with outdoor fireplaces\" rel=\"noopener noreferrer\"\u003estone fireplace\u003c\/a\u003e to enjoy cool evenings. The opposite end looks out onto a private garden area that is shared by the her bath. The Study has built-ins and views to the Veranda. The three-car garage has plenty of storage and contemporary glass garage doors (optional).\u003c\/p\u003e\n\u003cp class=\"p1\" data-mce-fragment=\"1\"\u003eThe other gallery leads to an exercise room, which could easily become a game room or fourth bedroom. Beyond that are two spacious Guest Rooms. Each guest room has walk-in closets and private baths. This wing also features ample walk-in storage closets.\u003c\/p\u003e\n\u003cp class=\"p1\" data-mce-fragment=\"1\"\u003eThe Edelweiss floor plan contains 3786 square feet of living area and has three bedrooms and 4.5 baths.\u003c\/p\u003e"}