We Will Match All Plan Sale Prices

0

Your Cart is Empty

Photographed homes may have been modified from original plan.

6563-pdf

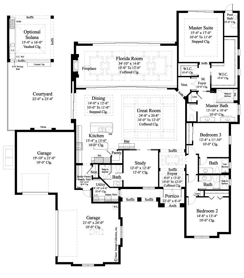
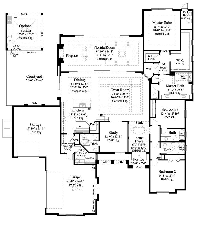
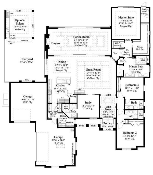
Carlton House Plan

3394 sq. ft. Total Living  |   3 Bedrooms  |  4 Full Baths
Select to Purchase
Add to Wishlist

House Plan Specifications

  • Total Living:  3394 sq. ft.
  • 1st Floor:  3394 sq. ft.
  • Bedrooms:  3
  • Bathrooms:  4
  • Half Baths:  1
  • Width of House:  80 ft. 0 in.
  • Depth of House:  88 ft. 1 in.
  • Foundation:  Stem Wall Slab
  • Exterior Wall:  Block
  • Stories:  1
  • Roof Pitch:  6/12
  • Garage Bays:  3
  • Garage Load:  Side/Swing
  • Garage:  988 sq. ft.
  • Portico:  113 sq. ft.
  • Solana:  256 sq. ft.
  • Total Area:  4751 sq. ft.
  • Building Height:  24 ft. 1 in.

House Plan Features

calton #6563 m floor plan

Customer Images

Photographed homes may have been modified from original plan.

What is in a Set of Plans?

Find out what we include in a set of house plans.

All Plans Need Engineering

Our plans do not include engineering for any specific site. Because of the great differences in geography and climate, each state, or municipality may have its own building regulations. Your plans will likely need site specific engineering in order to comply with those local requirements, therefore, we always recommend that you have the plans reviewed by a local structural engineer for compliance.

Want to Modify This Plan?

Click here to fill out a Modification Application.

We are experiencing an extremely high volume of modifications. We are working as fast as we can, however the time frame for modifications has been extended to a minimum of 10 weeks. At this time, we cannot guarantee any special time-frames. We apologize for the inconvenience.

Plan Options can increase the time it takes to process the house plans for delivery. If you have any questions, please contact us.

{"id":6286479367,"title":"Carlton House Plan","handle":"carlton-luxury-ranch-style-house-plan","description":"\u003cstyle\u003e\u003c!--\n.embed-container { position: relative; padding-bottom: 56.25%; height: 0; overflow: hidden; max-width: 100%; } .embed-container iframe, .embed-container object, .embed-container embed { position: absolute; top: 0; left: 0; width: 100%; height: 100%; }\n--\u003e\u003c\/style\u003e\n\u003cdiv class=\"embed-container\"\u003e\u003ciframe src=\"https:\/\/www.youtube.com\/embed\/FmCIPKFKIEg\" allowfullscreen=\"\" frameborder=\"0\"\u003e\u003c\/iframe\u003e\u003c\/div\u003e\n\u003cp\u003e \u003c\/p\u003e\n\u003cmeta charset=\"utf-8\"\u003e\n\u003cp class=\"p1\"\u003e\u003cspan class=\"s1\"\u003eThe Carlton \u003ca href=\"https:\/\/saterdesign.com\/collections\/home-plans-house-plans\" title=\"house plan\"\u003ehouse plan\u003c\/a\u003e is designed with flow, privacy and entertaining in mind. It has three bedrooms, four and a half bathrooms and features 3371 living square feet.\u003cspan class=\"Apple-converted-space\"\u003e  \u003c\/span\u003eUpon walking in, a stunning ceiling design adds drama to the home’s foyer. To the left is a guest wing with two guest bedrooms and private baths. Past the foyer is the open great room, kitchen and dining area. The large kitchen offers a corner pantry, center island and another counter that provides additional seating. A wet bar is located next to the kitchen in the great room. A wall of sliding glass doors separates the great room from the Florida room. The Florida room is an additional living area that can be opened wide or closed off. It features a fireplace and another wall of sliding glass that leads to the back yard. Outside, a covered cabana provides elegant outdoor living. It features an outdoor kitchen, serving counter and a place for a television.\u003c\/span\u003e\u003c\/p\u003e\n\u003cp class=\"p1\"\u003e\u003cspan class=\"s1\"\u003eBack inside the Carlton is a study with a private bath off of the great room. The three car garage is separated allowing for spacious parking or additional storage. The garage leads to a mud room\/family drop off area. It is designed with a seat, cabinets and a closet. This area leads directly to the kitchen and the utility room.\u003c\/span\u003e\u003c\/p\u003e\n\u003cp class=\"p1\"\u003e\u003cspan class=\"s1\"\u003eThe master suite is situated in the rear of the home, allowing for grand views. The master bath offers two vanities, a linen closet and a modern, walk-in shower. Two generous walk-in closets separate the master suite from the master bath. The master bedroom offers a sliding glass door to the rear patio, providing plenty of natural light.\u003c\/span\u003e\u003c\/p\u003e\n\u003cp class=\"p1\"\u003eAre you interested in having a \u003ca href=\"http:\/\/satergroup.com\"\u003ecustom home plan\u003c\/a\u003e designed just for you? Then please visit \u003ca href=\"http:\/\/satergroup.com\"\u003eSater Group, Inc.\u003c\/a\u003e and learn how we can design something just for you.\u003c\/p\u003e","published_at":"2016-04-27T09:37:00-04:00","created_at":"2016-04-27T10:09:49-04:00","vendor":"Sater Design","type":"Home Plans","tags":["930-457","Baths_4","Bedrooms_3","Exterior Wall_Block","Feature_Built-in Grill","Feature_Fireplace","Feature_Great Room","Feature_Office \/ Study","Feature_Outdoor Kitchen","Feature_Walk-in Pantry","Feature_Wet Bar","Foundation_Stem Wall Slab","Garage Bays_3","Garage Load_Side\/Swing","Half-Bath_1","Roof Pitch_6\/12","Stories_1"],"price":179900,"price_min":179900,"price_max":305500,"available":true,"price_varies":true,"compare_at_price":null,"compare_at_price_min":0,"compare_at_price_max":0,"compare_at_price_varies":false,"variants":[{"id":20068829831,"title":"Electronic PDF","option1":"Electronic PDF","option2":null,"option3":null,"sku":"6563-pdf","requires_shipping":false,"taxable":true,"featured_image":null,"available":true,"name":"Carlton House Plan - Electronic PDF","public_title":"Electronic PDF","options":["Electronic PDF"],"price":179900,"weight":0,"compare_at_price":null,"inventory_quantity":-6,"inventory_management":null,"inventory_policy":"deny","barcode":"","requires_selling_plan":false,"selling_plan_allocations":[]},{"id":20068959047,"title":"Electronic CAD","option1":"Electronic CAD","option2":null,"option3":null,"sku":"6563-cad","requires_shipping":false,"taxable":true,"featured_image":null,"available":true,"name":"Carlton House Plan - Electronic CAD","public_title":"Electronic CAD","options":["Electronic CAD"],"price":305500,"weight":3130,"compare_at_price":null,"inventory_quantity":-2,"inventory_management":null,"inventory_policy":"deny","barcode":"","requires_selling_plan":false,"selling_plan_allocations":[]}],"images":["\/\/saterdesign.com\/cdn\/shop\/products\/6563-FXC.jpg?v=1500393812","\/\/saterdesign.com\/cdn\/shop\/products\/6563-bedroom-2.jpg?v=1500393812","\/\/saterdesign.com\/cdn\/shop\/products\/6563-dining-area.jpg?v=1500393812","\/\/saterdesign.com\/cdn\/shop\/products\/6563-dinning-area.jpg?v=1500393812","\/\/saterdesign.com\/cdn\/shop\/products\/6563-florida-room-2.jpg?v=1500393812","\/\/saterdesign.com\/cdn\/shop\/products\/6563-florida-room.jpg?v=1500393812","\/\/saterdesign.com\/cdn\/shop\/products\/6563-great-room-2.jpg?v=1500393812","\/\/saterdesign.com\/cdn\/shop\/products\/6563-great-room.jpg?v=1500393812","\/\/saterdesign.com\/cdn\/shop\/products\/6563-Main-floor.jpg?v=1547873610","\/\/saterdesign.com\/cdn\/shop\/products\/6563-master-bath.jpg?v=1500393812","\/\/saterdesign.com\/cdn\/shop\/products\/6563-master-suite.jpg?v=1500393812","\/\/saterdesign.com\/cdn\/shop\/products\/6563-RXC.jpg?v=1500393812","\/\/saterdesign.com\/cdn\/shop\/products\/6563-solana.jpg?v=1500393812"],"featured_image":"\/\/saterdesign.com\/cdn\/shop\/products\/6563-FXC.jpg?v=1500393812","options":["Select to Purchase"],"media":[{"alt":"Carlton House Plan Sater Design","id":48929046601,"position":1,"preview_image":{"aspect_ratio":1.846,"height":520,"width":960,"src":"\/\/saterdesign.com\/cdn\/shop\/products\/6563-FXC.jpg?v=1500393812"},"aspect_ratio":1.846,"height":520,"media_type":"image","src":"\/\/saterdesign.com\/cdn\/shop\/products\/6563-FXC.jpg?v=1500393812","width":960},{"alt":"Carlton House Plan Sater Design","id":48929079369,"position":2,"preview_image":{"aspect_ratio":1.381,"height":695,"width":960,"src":"\/\/saterdesign.com\/cdn\/shop\/products\/6563-bedroom-2.jpg?v=1500393812"},"aspect_ratio":1.381,"height":695,"media_type":"image","src":"\/\/saterdesign.com\/cdn\/shop\/products\/6563-bedroom-2.jpg?v=1500393812","width":960},{"alt":"Carlton House Plan Sater Design","id":48929112137,"position":3,"preview_image":{"aspect_ratio":0.789,"height":850,"width":671,"src":"\/\/saterdesign.com\/cdn\/shop\/products\/6563-dining-area.jpg?v=1500393812"},"aspect_ratio":0.789,"height":850,"media_type":"image","src":"\/\/saterdesign.com\/cdn\/shop\/products\/6563-dining-area.jpg?v=1500393812","width":671},{"alt":"Carlton House Plan Sater Design","id":48929144905,"position":4,"preview_image":{"aspect_ratio":1.574,"height":610,"width":960,"src":"\/\/saterdesign.com\/cdn\/shop\/products\/6563-dinning-area.jpg?v=1500393812"},"aspect_ratio":1.574,"height":610,"media_type":"image","src":"\/\/saterdesign.com\/cdn\/shop\/products\/6563-dinning-area.jpg?v=1500393812","width":960},{"alt":"Carlton House Plan Sater Design","id":48929177673,"position":5,"preview_image":{"aspect_ratio":1.571,"height":611,"width":960,"src":"\/\/saterdesign.com\/cdn\/shop\/products\/6563-florida-room-2.jpg?v=1500393812"},"aspect_ratio":1.571,"height":611,"media_type":"image","src":"\/\/saterdesign.com\/cdn\/shop\/products\/6563-florida-room-2.jpg?v=1500393812","width":960},{"alt":"Carlton House Plan Sater Design","id":48929210441,"position":6,"preview_image":{"aspect_ratio":1.5,"height":640,"width":960,"src":"\/\/saterdesign.com\/cdn\/shop\/products\/6563-florida-room.jpg?v=1500393812"},"aspect_ratio":1.5,"height":640,"media_type":"image","src":"\/\/saterdesign.com\/cdn\/shop\/products\/6563-florida-room.jpg?v=1500393812","width":960},{"alt":"Carlton House Plan Sater Design","id":48929243209,"position":7,"preview_image":{"aspect_ratio":1.693,"height":567,"width":960,"src":"\/\/saterdesign.com\/cdn\/shop\/products\/6563-great-room-2.jpg?v=1500393812"},"aspect_ratio":1.693,"height":567,"media_type":"image","src":"\/\/saterdesign.com\/cdn\/shop\/products\/6563-great-room-2.jpg?v=1500393812","width":960},{"alt":"Carlton House Plan Sater Design","id":48929275977,"position":8,"preview_image":{"aspect_ratio":0.679,"height":850,"width":577,"src":"\/\/saterdesign.com\/cdn\/shop\/products\/6563-great-room.jpg?v=1500393812"},"aspect_ratio":0.679,"height":850,"media_type":"image","src":"\/\/saterdesign.com\/cdn\/shop\/products\/6563-great-room.jpg?v=1500393812","width":577},{"alt":"Calton #6563 M Floor Plan","id":48929308745,"position":9,"preview_image":{"aspect_ratio":0.876,"height":900,"width":788,"src":"\/\/saterdesign.com\/cdn\/shop\/products\/6563-Main-floor.jpg?v=1547873610"},"aspect_ratio":0.876,"height":900,"media_type":"image","src":"\/\/saterdesign.com\/cdn\/shop\/products\/6563-Main-floor.jpg?v=1547873610","width":788},{"alt":"Carlton House Plan Sater Design","id":48929341513,"position":10,"preview_image":{"aspect_ratio":1.5,"height":640,"width":960,"src":"\/\/saterdesign.com\/cdn\/shop\/products\/6563-master-bath.jpg?v=1500393812"},"aspect_ratio":1.5,"height":640,"media_type":"image","src":"\/\/saterdesign.com\/cdn\/shop\/products\/6563-master-bath.jpg?v=1500393812","width":960},{"alt":"Carlton House Plan Sater Design","id":48929374281,"position":11,"preview_image":{"aspect_ratio":1.495,"height":642,"width":960,"src":"\/\/saterdesign.com\/cdn\/shop\/products\/6563-master-suite.jpg?v=1500393812"},"aspect_ratio":1.495,"height":642,"media_type":"image","src":"\/\/saterdesign.com\/cdn\/shop\/products\/6563-master-suite.jpg?v=1500393812","width":960},{"alt":"Carlton House Plan Sater Design","id":48929407049,"position":12,"preview_image":{"aspect_ratio":1.951,"height":492,"width":960,"src":"\/\/saterdesign.com\/cdn\/shop\/products\/6563-RXC.jpg?v=1500393812"},"aspect_ratio":1.951,"height":492,"media_type":"image","src":"\/\/saterdesign.com\/cdn\/shop\/products\/6563-RXC.jpg?v=1500393812","width":960},{"alt":"Carlton House Plan Sater Design","id":48929439817,"position":13,"preview_image":{"aspect_ratio":1.696,"height":566,"width":960,"src":"\/\/saterdesign.com\/cdn\/shop\/products\/6563-solana.jpg?v=1500393812"},"aspect_ratio":1.696,"height":566,"media_type":"image","src":"\/\/saterdesign.com\/cdn\/shop\/products\/6563-solana.jpg?v=1500393812","width":960}],"requires_selling_plan":false,"selling_plan_groups":[],"content":"\u003cstyle\u003e\u003c!--\n.embed-container { position: relative; padding-bottom: 56.25%; height: 0; overflow: hidden; max-width: 100%; } .embed-container iframe, .embed-container object, .embed-container embed { position: absolute; top: 0; left: 0; width: 100%; height: 100%; }\n--\u003e\u003c\/style\u003e\n\u003cdiv class=\"embed-container\"\u003e\u003ciframe src=\"https:\/\/www.youtube.com\/embed\/FmCIPKFKIEg\" allowfullscreen=\"\" frameborder=\"0\"\u003e\u003c\/iframe\u003e\u003c\/div\u003e\n\u003cp\u003e \u003c\/p\u003e\n\u003cmeta charset=\"utf-8\"\u003e\n\u003cp class=\"p1\"\u003e\u003cspan class=\"s1\"\u003eThe Carlton \u003ca href=\"https:\/\/saterdesign.com\/collections\/home-plans-house-plans\" title=\"house plan\"\u003ehouse plan\u003c\/a\u003e is designed with flow, privacy and entertaining in mind. It has three bedrooms, four and a half bathrooms and features 3371 living square feet.\u003cspan class=\"Apple-converted-space\"\u003e  \u003c\/span\u003eUpon walking in, a stunning ceiling design adds drama to the home’s foyer. To the left is a guest wing with two guest bedrooms and private baths. Past the foyer is the open great room, kitchen and dining area. The large kitchen offers a corner pantry, center island and another counter that provides additional seating. A wet bar is located next to the kitchen in the great room. A wall of sliding glass doors separates the great room from the Florida room. The Florida room is an additional living area that can be opened wide or closed off. It features a fireplace and another wall of sliding glass that leads to the back yard. Outside, a covered cabana provides elegant outdoor living. It features an outdoor kitchen, serving counter and a place for a television.\u003c\/span\u003e\u003c\/p\u003e\n\u003cp class=\"p1\"\u003e\u003cspan class=\"s1\"\u003eBack inside the Carlton is a study with a private bath off of the great room. The three car garage is separated allowing for spacious parking or additional storage. The garage leads to a mud room\/family drop off area. It is designed with a seat, cabinets and a closet. This area leads directly to the kitchen and the utility room.\u003c\/span\u003e\u003c\/p\u003e\n\u003cp class=\"p1\"\u003e\u003cspan class=\"s1\"\u003eThe master suite is situated in the rear of the home, allowing for grand views. The master bath offers two vanities, a linen closet and a modern, walk-in shower. Two generous walk-in closets separate the master suite from the master bath. The master bedroom offers a sliding glass door to the rear patio, providing plenty of natural light.\u003c\/span\u003e\u003c\/p\u003e\n\u003cp class=\"p1\"\u003eAre you interested in having a \u003ca href=\"http:\/\/satergroup.com\"\u003ecustom home plan\u003c\/a\u003e designed just for you? Then please visit \u003ca href=\"http:\/\/satergroup.com\"\u003eSater Group, Inc.\u003c\/a\u003e and learn how we can design something just for you.\u003c\/p\u003e"}