We Will Match All Plan Sale Prices

0

Your Cart is Empty

Photographed homes may have been modified from original plan.

6685-pdf

Bridgeport Harbour House Plan

2520 sq. ft. Total Living  |   3 Bedrooms  |  2 Full Baths
Select to Purchase
Add to Wishlist

House Plan Specifications

  • Total Living:  2520 sq. ft.
  • 1st Floor:  1305 sq. ft.
  • 2nd Floor:  1215 sq. ft.
  • Bedrooms:  3
  • Bathrooms:  2
  • Half Baths:  1
  • Width of House:  32 ft. 6 in.
  • Depth of House:  77 ft. 6 in.
  • Foundation:  Island Basement
  • Exterior Wall:  Wood 2x6
  • Stories:  3
  • Roof Pitch:  6/12
  • Garage Bays:  2
  • Garage Load:  Front
  • Garage:  480 sq. ft.
  • Deck:  717 sq. ft.
  • Ground Floor:  935 sq. ft.
  • Porch Patio:  1434 sq. ft.
  • Total Area:  6086 sq. ft.
  • Building Height:  40 ft. 0 in.

House Plan Features

bridgeport harbour- main level floor plan -#6685
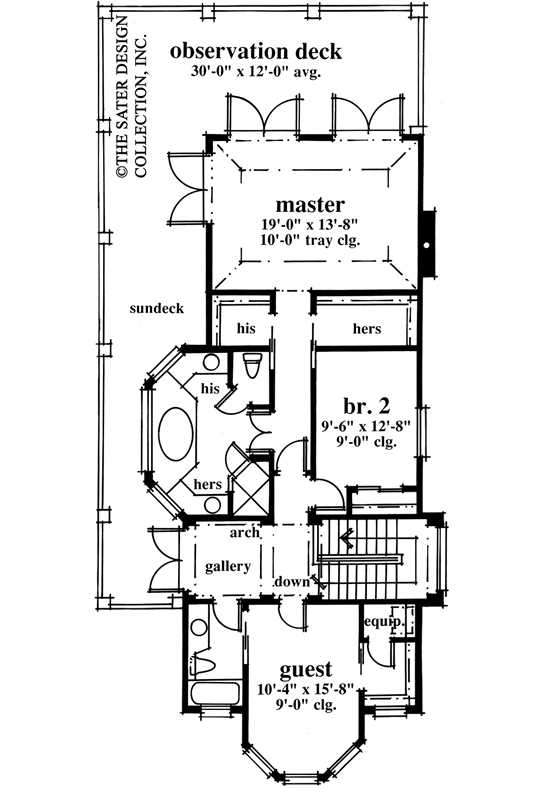
bridgeport harbour- upper level floor plan -plan#6685
bridgeport harbour- lower floor plan -#6685

Customer Images

Photographed homes may have been modified from original plan.

What is in a Set of Plans?

Find out what we include in a set of house plans.

All Plans Need Engineering

Our plans do not include engineering for any specific site. Because of the great differences in geography and climate, each state, or municipality may have its own building regulations. Your plans will likely need site specific engineering in order to comply with those local requirements, therefore, we always recommend that you have the plans reviewed by a local structural engineer for compliance.

Want to Modify This Plan?

Click here to fill out a Modification Application.

We are experiencing an extremely high volume of modifications. We are working as fast as we can, however the time frame for modifications has been extended to a minimum of 10 weeks. At this time, we cannot guarantee any special time-frames. We apologize for the inconvenience.

Plan Options can increase the time it takes to process the house plans for delivery. If you have any questions, please contact us.

{"id":4265468999,"title":"Bridgeport Harbour House Plan","handle":"bridgeport-harbour-plantation-house-plan","description":"\u003cp\u003eOur Bridgeport Harbour \u003ca href=\"https:\/\/saterdesign.com\/collections\/home-plans-house-plans\" title=\"house plan\"\u003ehouse plan\u003c\/a\u003e was inspired by Jamaican plantation houses that are lovingly revived by the Old Charleston Row homes. This house plan has 2520 square feet of living area, three bedrooms and two and a half bathrooms. It is available with an island basement foundation. Inside, vintage details speak softly of a Southern heritage. However, it defies the past through the incorporation of modern amenities. Arched columns define both formal and casual spaces, making an easygoing theme that flows throughout the well-lit interior. A study in contrasts, the home mixes refined craftsmanship with definitive creature comforts. The lower level of Bridgeport Harbour holds the two-car garage and a covered porch. It also offers ample amounts of bonus space with endless design opportunities. French doors lead out to a glorious garden courtyard. The main level houses the main living rooms in Bridgeport Harbour. A study, powder bathroom and utility room face the front of the home. The kitchen and dining room open to a spacious great room with a fireplace and built ins. Four sets of French doors bring the outside in to the great room. Fling them wide open and let the crackle of the fireplace play harmony to the soft sounds of the sea.\u003c\/p\u003e\n\u003cp\u003eTwo bedrooms and the master suite are located upstairs in Bridgeport Harbour. The upper level master suite features a spacious bath designed for two. Three sets of doors open to the observation deck with a special place for sunning. A guest bedroom on this level leads to a gallery hall with its own access to the deck. Wraparound porticos on two levels offer seaside views to the living areas, with French doors providing a seamless connection between the interior and outdoor living spaces.\u003c\/p\u003e\n\u003cp\u003eAre you interested in having a \u003ca href=\"http:\/\/satergroup.com\"\u003ecustom home plan\u003c\/a\u003e designed just for you? Then please visit \u003ca href=\"http:\/\/satergroup.com\"\u003eSater Group, Inc.\u003c\/a\u003e and learn how we can design something just for you.\u003c\/p\u003e","published_at":"2016-02-02T15:00:00-05:00","created_at":"2016-02-02T15:00:31-05:00","vendor":"Sater Design","type":"Home Plans","tags":["930-68","Baths_2","Bedrooms_3","Exterior Wall_Wood 2x6","Feature_Fireplace","Feature_His and Hers Closets","Feature_Office \/ Study","Feature_Second Floor Master","Foundation_Island Basement","Garage Bays_2","Garage Load_Front","Half-Bath_1","Roof Pitch_6\/12","Stories_3"],"price":133600,"price_min":133600,"price_max":226800,"available":true,"price_varies":true,"compare_at_price":null,"compare_at_price_min":0,"compare_at_price_max":0,"compare_at_price_varies":false,"variants":[{"id":14593811335,"title":"Electronic PDF","option1":"Electronic PDF","option2":null,"option3":null,"sku":"6685-pdf","requires_shipping":false,"taxable":true,"featured_image":null,"available":true,"name":"Bridgeport Harbour House Plan - Electronic PDF","public_title":"Electronic PDF","options":["Electronic PDF"],"price":133600,"weight":0,"compare_at_price":null,"inventory_quantity":0,"inventory_management":null,"inventory_policy":"deny","barcode":"","requires_selling_plan":false,"selling_plan_allocations":[]},{"id":14593811271,"title":"Electronic CAD","option1":"Electronic CAD","option2":null,"option3":null,"sku":"6685-cad","requires_shipping":false,"taxable":true,"featured_image":null,"available":true,"name":"Bridgeport Harbour House Plan - Electronic CAD","public_title":"Electronic CAD","options":["Electronic CAD"],"price":226800,"weight":3130,"compare_at_price":null,"inventory_quantity":1,"inventory_management":null,"inventory_policy":"deny","barcode":null,"requires_selling_plan":false,"selling_plan_allocations":[]}],"images":["\/\/saterdesign.com\/cdn\/shop\/products\/6685_FXC.jpeg?v=1547873585","\/\/saterdesign.com\/cdn\/shop\/products\/6685_RXC.jpeg?v=1547873585","\/\/saterdesign.com\/cdn\/shop\/products\/6685_M.gif?v=1547873585","\/\/saterdesign.com\/cdn\/shop\/products\/6685_U.gif?v=1547873585","\/\/saterdesign.com\/cdn\/shop\/products\/6685_L.gif?v=1547873585"],"featured_image":"\/\/saterdesign.com\/cdn\/shop\/products\/6685_FXC.jpeg?v=1547873585","options":["Select to Purchase"],"media":[{"alt":"Bridgeport Harbour-Front Elevation-Plan#6685","id":28337897545,"position":1,"preview_image":{"aspect_ratio":1.845,"height":420,"width":775,"src":"\/\/saterdesign.com\/cdn\/shop\/products\/6685_FXC.jpeg?v=1547873585"},"aspect_ratio":1.845,"height":420,"media_type":"image","src":"\/\/saterdesign.com\/cdn\/shop\/products\/6685_FXC.jpeg?v=1547873585","width":775},{"alt":"Bridgeport Harbour-Rear Elevation-Plan #6685","id":28337930313,"position":2,"preview_image":{"aspect_ratio":1.266,"height":474,"width":600,"src":"\/\/saterdesign.com\/cdn\/shop\/products\/6685_RXC.jpeg?v=1547873585"},"aspect_ratio":1.266,"height":474,"media_type":"image","src":"\/\/saterdesign.com\/cdn\/shop\/products\/6685_RXC.jpeg?v=1547873585","width":600},{"alt":"Bridgeport Harbour- Main Level Floor Plan -#6685","id":28337963081,"position":3,"preview_image":{"aspect_ratio":0.61,"height":888,"width":542,"src":"\/\/saterdesign.com\/cdn\/shop\/products\/6685_M.gif?v=1547873585"},"aspect_ratio":0.61,"height":888,"media_type":"image","src":"\/\/saterdesign.com\/cdn\/shop\/products\/6685_M.gif?v=1547873585","width":542},{"alt":"Bridgeport Harbour- Upper Level Floor Plan -Plan#6685","id":28337995849,"position":4,"preview_image":{"aspect_ratio":0.681,"height":796,"width":542,"src":"\/\/saterdesign.com\/cdn\/shop\/products\/6685_U.gif?v=1547873585"},"aspect_ratio":0.681,"height":796,"media_type":"image","src":"\/\/saterdesign.com\/cdn\/shop\/products\/6685_U.gif?v=1547873585","width":542},{"alt":"Bridgeport Harbour- Lower Floor Plan -#6685","id":28338028617,"position":5,"preview_image":{"aspect_ratio":0.577,"height":939,"width":542,"src":"\/\/saterdesign.com\/cdn\/shop\/products\/6685_L.gif?v=1547873585"},"aspect_ratio":0.577,"height":939,"media_type":"image","src":"\/\/saterdesign.com\/cdn\/shop\/products\/6685_L.gif?v=1547873585","width":542}],"requires_selling_plan":false,"selling_plan_groups":[],"content":"\u003cp\u003eOur Bridgeport Harbour \u003ca href=\"https:\/\/saterdesign.com\/collections\/home-plans-house-plans\" title=\"house plan\"\u003ehouse plan\u003c\/a\u003e was inspired by Jamaican plantation houses that are lovingly revived by the Old Charleston Row homes. This house plan has 2520 square feet of living area, three bedrooms and two and a half bathrooms. It is available with an island basement foundation. Inside, vintage details speak softly of a Southern heritage. However, it defies the past through the incorporation of modern amenities. Arched columns define both formal and casual spaces, making an easygoing theme that flows throughout the well-lit interior. A study in contrasts, the home mixes refined craftsmanship with definitive creature comforts. The lower level of Bridgeport Harbour holds the two-car garage and a covered porch. It also offers ample amounts of bonus space with endless design opportunities. French doors lead out to a glorious garden courtyard. The main level houses the main living rooms in Bridgeport Harbour. A study, powder bathroom and utility room face the front of the home. The kitchen and dining room open to a spacious great room with a fireplace and built ins. Four sets of French doors bring the outside in to the great room. Fling them wide open and let the crackle of the fireplace play harmony to the soft sounds of the sea.\u003c\/p\u003e\n\u003cp\u003eTwo bedrooms and the master suite are located upstairs in Bridgeport Harbour. The upper level master suite features a spacious bath designed for two. Three sets of doors open to the observation deck with a special place for sunning. A guest bedroom on this level leads to a gallery hall with its own access to the deck. Wraparound porticos on two levels offer seaside views to the living areas, with French doors providing a seamless connection between the interior and outdoor living spaces.\u003c\/p\u003e\n\u003cp\u003eAre you interested in having a \u003ca href=\"http:\/\/satergroup.com\"\u003ecustom home plan\u003c\/a\u003e designed just for you? Then please visit \u003ca href=\"http:\/\/satergroup.com\"\u003eSater Group, Inc.\u003c\/a\u003e and learn how we can design something just for you.\u003c\/p\u003e"}