We Will Match All Plan Sale Prices

0

Your Cart is Empty

Photographed homes may have been modified from original plan.

7044-pdf

Crescent Somer House Plan

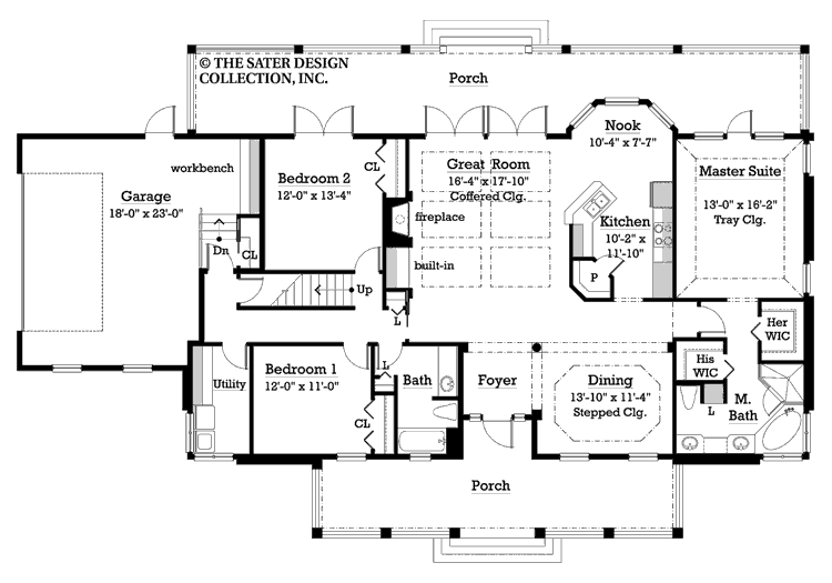
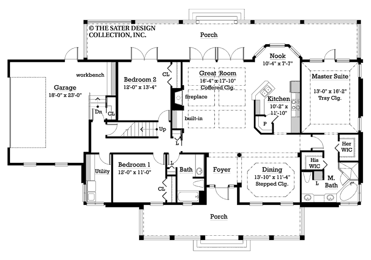
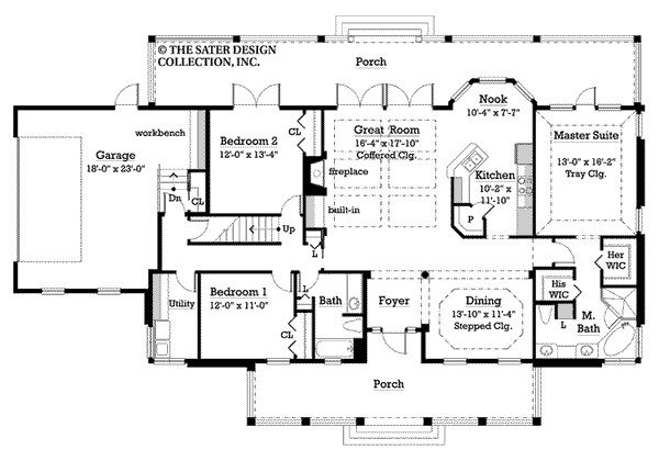
1989 sq. ft. Total Living  |   3 Bedrooms  |  2 Full Baths
Select to Purchase
Add to Wishlist

House Plan Specifications

  • Total Living:  1989 sq. ft.
  • 1st Floor:  1989 sq. ft.
  • Bonus Room:  291 sq. ft.
  • Bedrooms:  3
  • Bathrooms:  2
  • Width of House:  81 ft. 0 in.
  • Depth of House:  50 ft. 0 in.
  • Foundation:  Crawl Space
  • Exterior Wall:  Wood 2x6
  • Stories:  1
  • Roof Pitch:  10/12
  • Garage Bays:  2
  • Garage Load:  Side/Swing
  • Garage:  512 sq. ft.
  • Bonus Room:  291 sq. ft.
  • Entry:  330 sq. ft.
  • Porch Patio:  538 sq. ft.
  • Total Area:  3665 sq. ft.
  • Building Height:  27 ft. 0 in.

House Plan Features

crescent somer-main level floor plan-#7044
crescent somer-upper level floor plan #7044

What is in a Set of Plans?

Find out what we include in a set of house plans.

All Plans Need Engineering

Our plans do not include engineering for any specific site. Because of the great differences in geography and climate, each state, or municipality may have its own building regulations. Your plans will likely need site specific engineering in order to comply with those local requirements, therefore, we always recommend that you have the plans reviewed by a local structural engineer for compliance.

Want to Modify This Plan?

Click here to fill out a Modification Application.

We are experiencing an extremely high volume of modifications. We are working as fast as we can, however the time frame for modifications has been extended to a minimum of 10 weeks. At this time, we cannot guarantee any special time-frames. We apologize for the inconvenience.

Plan Options can increase the time it takes to process the house plans for delivery. If you have any questions, please contact us.

{"id":4264440647,"title":"Crescent Somer House Plan","handle":"crescent-somer-country-style-house-plan","description":"\u003cp\u003eRepeating arches that line the front porch serve as a dramatic prelude to the arched window dormer and twin louvered dormers above. From its high-pitched roof lines down to each classic column lining its porch, the Crescent Somer floor plan radiates a comforting sense of home. The \u003ca href=\"https:\/\/saterdesign.com\/collections\/home-plans-house-plans\" title=\"floor plan\"\u003efloor plan\u003c\/a\u003e opens out to a massive back porch through three different sets of French doors. The kitchen affords easy access to the dining, nook and great room. The Crescent Somer kitchen has a large walk in pantry, and the counter space overlooks the breakfast nook and great room. The fireplace in the great room will warm the kitchen and breakfast nook.\u003c\/p\u003e\n\u003cp\u003eHere's a perfect country home that offers an ideal rocking-chair front porch and an easy-flow living area. Window dormers, classic columns, and a glowing front entry complement the Crescent Somer plan's high-pitched roof lines. A pass-through bar joins the open spaces of the great room to the bay window nook and kitchen that highlights a corner pantry. An extra-large garage includes a built-in workbench and easy access to an ample utility room.\u003c\/p\u003e\n\u003cp\u003eDesigned with a growing family in mind, this Crescent Somer home plan features a large bonus room and bath above the garage. This is the perfect place for a private guest suite. French doors open the rooms on the first floor bordering the rear to a full rear porch. His-and-hers walk-in closets and a spacious master bath enhance the private master suite. A make-up area, double vanities, corner shower, linen niche and sun-drenched whirlpool soaking tub fill out the glorious master suite.\u003c\/p\u003e\n\u003cp\u003eOn the opposite wing of the house are two bedrooms and a full bathroom. The large utility room completes the other side of the Crescent Somer plan. This floor plan has 1989 square feet of living area and has three bedrooms and two bathrooms. The plan sits on a crawlspace foundation.\u003c\/p\u003e\n\u003cp\u003eAre you interested in having a \u003ca title=\"The Sater Group\" href=\"http:\/\/satergroup.com\" target=\"_blank\" rel=\"noopener noreferrer\"\u003ecustom home plan\u003c\/a\u003e designed just for you? Then please visit \u003ca title=\"The Sater Group\" href=\"http:\/\/satergroup.com\" target=\"_blank\" rel=\"noopener noreferrer\"\u003eSater Group, Inc.\u003c\/a\u003e and learn how we can design something just for you.\u003c\/p\u003e","published_at":"2016-02-02T13:52:00-05:00","created_at":"2016-02-02T13:52:42-05:00","vendor":"Sater Design","type":"Home Plans","tags":["930-226","Basement Options","Baths_2","Bedrooms_3","Exterior Wall_Wood 2x6","Feature_Fireplace","Feature_Great Room","Feature_His and Hers Closets","Feature_Master Suite Main Floor","Feature_Walk-in Pantry","Foundation_Crawl Space","Foundation_Optional Basements","Garage Bays_2","Garage Load_Side\/Swing","Roof Pitch_10\/12","Stories_1"],"price":105400,"price_min":105400,"price_max":179000,"available":true,"price_varies":true,"compare_at_price":null,"compare_at_price_min":0,"compare_at_price_max":0,"compare_at_price_varies":false,"variants":[{"id":14591294983,"title":"Electronic PDF","option1":"Electronic PDF","option2":null,"option3":null,"sku":"7044-pdf","requires_shipping":false,"taxable":true,"featured_image":null,"available":true,"name":"Crescent Somer House Plan - Electronic PDF","public_title":"Electronic PDF","options":["Electronic PDF"],"price":105400,"weight":0,"compare_at_price":null,"inventory_quantity":-1,"inventory_management":null,"inventory_policy":"deny","barcode":"","requires_selling_plan":false,"selling_plan_allocations":[]},{"id":14591294855,"title":"Electronic CAD","option1":"Electronic CAD","option2":null,"option3":null,"sku":"7044-cad","requires_shipping":false,"taxable":true,"featured_image":null,"available":true,"name":"Crescent Somer House Plan - Electronic CAD","public_title":"Electronic CAD","options":["Electronic CAD"],"price":179000,"weight":3084,"compare_at_price":null,"inventory_quantity":1,"inventory_management":null,"inventory_policy":"deny","barcode":null,"requires_selling_plan":false,"selling_plan_allocations":[]}],"images":["\/\/saterdesign.com\/cdn\/shop\/products\/7044_FXC.jpeg?v=1547873673","\/\/saterdesign.com\/cdn\/shop\/products\/7044_RXC.jpeg?v=1547873673","\/\/saterdesign.com\/cdn\/shop\/products\/7044_M.gif?v=1547873673","\/\/saterdesign.com\/cdn\/shop\/products\/7044_U.gif?v=1547873673"],"featured_image":"\/\/saterdesign.com\/cdn\/shop\/products\/7044_FXC.jpeg?v=1547873673","options":["Select to Purchase"],"media":[{"alt":"Crescent Somer-Front Elevation-Plan #7044","id":28285829193,"position":1,"preview_image":{"aspect_ratio":1.845,"height":420,"width":775,"src":"\/\/saterdesign.com\/cdn\/shop\/products\/7044_FXC.jpeg?v=1547873673"},"aspect_ratio":1.845,"height":420,"media_type":"image","src":"\/\/saterdesign.com\/cdn\/shop\/products\/7044_FXC.jpeg?v=1547873673","width":775},{"alt":"Crescent Somer-Rear Elevation-Plan #7044","id":28285861961,"position":2,"preview_image":{"aspect_ratio":1.266,"height":474,"width":600,"src":"\/\/saterdesign.com\/cdn\/shop\/products\/7044_RXC.jpeg?v=1547873673"},"aspect_ratio":1.266,"height":474,"media_type":"image","src":"\/\/saterdesign.com\/cdn\/shop\/products\/7044_RXC.jpeg?v=1547873673","width":600},{"alt":"Crescent Somer-Main Level Floor Plan-#7044","id":28285894729,"position":3,"preview_image":{"aspect_ratio":1.429,"height":525,"width":750,"src":"\/\/saterdesign.com\/cdn\/shop\/products\/7044_M.gif?v=1547873673"},"aspect_ratio":1.429,"height":525,"media_type":"image","src":"\/\/saterdesign.com\/cdn\/shop\/products\/7044_M.gif?v=1547873673","width":750},{"alt":"Crescent Somer-Upper Level Floor Plan #7044","id":28285927497,"position":4,"preview_image":{"aspect_ratio":1.667,"height":210,"width":350,"src":"\/\/saterdesign.com\/cdn\/shop\/products\/7044_U.gif?v=1547873673"},"aspect_ratio":1.667,"height":210,"media_type":"image","src":"\/\/saterdesign.com\/cdn\/shop\/products\/7044_U.gif?v=1547873673","width":350}],"requires_selling_plan":false,"selling_plan_groups":[],"content":"\u003cp\u003eRepeating arches that line the front porch serve as a dramatic prelude to the arched window dormer and twin louvered dormers above. From its high-pitched roof lines down to each classic column lining its porch, the Crescent Somer floor plan radiates a comforting sense of home. The \u003ca href=\"https:\/\/saterdesign.com\/collections\/home-plans-house-plans\" title=\"floor plan\"\u003efloor plan\u003c\/a\u003e opens out to a massive back porch through three different sets of French doors. The kitchen affords easy access to the dining, nook and great room. The Crescent Somer kitchen has a large walk in pantry, and the counter space overlooks the breakfast nook and great room. The fireplace in the great room will warm the kitchen and breakfast nook.\u003c\/p\u003e\n\u003cp\u003eHere's a perfect country home that offers an ideal rocking-chair front porch and an easy-flow living area. Window dormers, classic columns, and a glowing front entry complement the Crescent Somer plan's high-pitched roof lines. A pass-through bar joins the open spaces of the great room to the bay window nook and kitchen that highlights a corner pantry. An extra-large garage includes a built-in workbench and easy access to an ample utility room.\u003c\/p\u003e\n\u003cp\u003eDesigned with a growing family in mind, this Crescent Somer home plan features a large bonus room and bath above the garage. This is the perfect place for a private guest suite. French doors open the rooms on the first floor bordering the rear to a full rear porch. His-and-hers walk-in closets and a spacious master bath enhance the private master suite. A make-up area, double vanities, corner shower, linen niche and sun-drenched whirlpool soaking tub fill out the glorious master suite.\u003c\/p\u003e\n\u003cp\u003eOn the opposite wing of the house are two bedrooms and a full bathroom. The large utility room completes the other side of the Crescent Somer plan. This floor plan has 1989 square feet of living area and has three bedrooms and two bathrooms. The plan sits on a crawlspace foundation.\u003c\/p\u003e\n\u003cp\u003eAre you interested in having a \u003ca title=\"The Sater Group\" href=\"http:\/\/satergroup.com\" target=\"_blank\" rel=\"noopener noreferrer\"\u003ecustom home plan\u003c\/a\u003e designed just for you? Then please visit \u003ca title=\"The Sater Group\" href=\"http:\/\/satergroup.com\" target=\"_blank\" rel=\"noopener noreferrer\"\u003eSater Group, Inc.\u003c\/a\u003e and learn how we can design something just for you.\u003c\/p\u003e"}