We Will Match All Plan Sale Prices

0

Your Cart is Empty

Photographed homes may have been modified from original plan.

7055-pdf

Wheatfield House Plan

3096 sq. ft. Total Living  |   4 Bedrooms  |  3 Full Baths
Select to Purchase
Add to Wishlist

House Plan Specifications

  • Total Living:  3096 sq. ft.
  • 1st Floor:  2083 sq. ft.
  • 2nd Floor:  1013 sq. ft.
  • Bedrooms:  4
  • Bathrooms:  3
  • Half Baths:  1
  • Width of House:  74 ft. 0 in.
  • Depth of House:  88 ft. 0 in.
  • Foundation:  Crawl Space
  • Exterior Wall:  Wood 2x6
  • Stories:  2
  • Roof Pitch:  8/12
  • Garage Bays:  2
  • Garage Load:  Front
  • Garage:  497 sq. ft.
  • Entry:  369 sq. ft.
  • Porch Patio:  719 sq. ft.
  • Total Area:  4681 sq. ft.
  • Building Height:  33 ft. 0 in.

House Plan Features

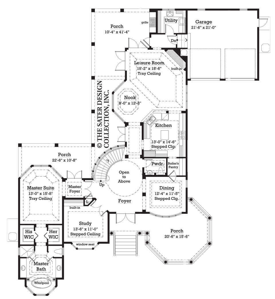
wheatfield-main level floor plan-#7055
wheatfield home - upper level floor plan - #7055_u

What is in a Set of Plans?

Find out what we include in a set of house plans.

All Plans Need Engineering

Our plans do not include engineering for any specific site. Because of the great differences in geography and climate, each state, or municipality may have its own building regulations. Your plans will likely need site specific engineering in order to comply with those local requirements, therefore, we always recommend that you have the plans reviewed by a local structural engineer for compliance.

Want to Modify This Plan?

Click here to fill out a Modification Application.

We are experiencing an extremely high volume of modifications. We are working as fast as we can, however the time frame for modifications has been extended to a minimum of 10 weeks. At this time, we cannot guarantee any special time-frames. We apologize for the inconvenience.

Plan Options can increase the time it takes to process the house plans for delivery. If you have any questions, please contact us.

{"id":4264403271,"title":"Wheatfield House Plan","handle":"wheatfield-country-house-plan","description":"\u003cp\u003eThis dream home, the Wheatfield, captures the comfort and style of the country with an unrivaled design. The circular porch, with a two-story turret and abundant rectangular windows, allow natural light to flood the geometric spaces of the Wheatfield and makes for a stunning first impression.\u003c\/p\u003e\n\u003cp\u003eA grand foyer features a radius staircase that graces the entry hall and helps define the wide-open interior. Inside, the staircase and open ceiling to the second floor reveal ample light, views and impressive details. A formal dining room connects via the butler's pantry to the gourmet island kitchen.\u003c\/p\u003e\n\u003cp\u003eThe large, open floor plan features a casual leisure room bordered in French doors that sports a corner built-in entertainment center large enough for your big screen TV. The breakfast nook has a wall of glass overlooking the side porch.\u003c\/p\u003e\n\u003cp\u003eThe main-level private master suite is entered through a separate foyer. The suite is composed of a spacious master bedroom with a spectacular tray ceiling. There are two walk-in closets, and a lavish master bath with separate vanities. At the far end of the master bath is an oval Whirlpool soaker tub looking out through a circular glass platform. There is a separate walk in shower and water closet for the toilet.\u003c\/p\u003e\n\u003cp\u003eTo the rear of the Wheatfield plan is the utility room. To the right is a two car garage and to the left of the utility room is a side porch with a built in grille.\u003c\/p\u003e\n\u003cp\u003eThe upstairs of the Wheatfield plan houses three additional bedrooms, two full baths, a computer center, linen closet, and wrapping loft. The Wheatfield house plan has 3096 square feet of living area with four bedrooms and three and 1\/2 bathrooms. The plan sits on a crawlspace foundation.\u003c\/p\u003e\n\u003cp\u003eAre you interested in having a \u003ca title=\"The Sater Group\" href=\"http:\/\/satergroup.com\" target=\"_blank\" rel=\"noopener noreferrer\"\u003ecustom home plan\u003c\/a\u003e designed just for you? Then please visit \u003ca title=\"The Sater Group\" href=\"http:\/\/satergroup.com\" target=\"_blank\" rel=\"noopener noreferrer\"\u003eSater Group, Inc.\u003c\/a\u003e and learn how we can design the home of your dreams.\u003c\/p\u003e","published_at":"2016-02-02T13:50:00-05:00","created_at":"2016-02-02T13:50:24-05:00","vendor":"Sater Design","type":"Home Plans","tags":["930-236","Baths_3","Bedrooms_4","Exterior Wall_Wood 2x6","Feature_Built-in Grill","Feature_Butler’s Pantry","Feature_Great Room","Feature_His and Hers Closets","Feature_Master Suite Main Floor","Foundation_Crawl Space","Garage Bays_2","Garage Load_Front","Half-Bath_1","Roof Pitch_8\/12","Stories_2"],"price":164100,"price_min":164100,"price_max":164100,"available":true,"price_varies":false,"compare_at_price":null,"compare_at_price_min":0,"compare_at_price_max":0,"compare_at_price_varies":false,"variants":[{"id":14591126279,"title":"Electronic PDF","option1":"Electronic PDF","option2":null,"option3":null,"sku":"7055-pdf","requires_shipping":false,"taxable":true,"featured_image":null,"available":true,"name":"Wheatfield House Plan - Electronic PDF","public_title":"Electronic PDF","options":["Electronic PDF"],"price":164100,"weight":0,"compare_at_price":null,"inventory_quantity":1,"inventory_management":null,"inventory_policy":"deny","barcode":"","requires_selling_plan":false,"selling_plan_allocations":[]}],"images":["\/\/saterdesign.com\/cdn\/shop\/products\/7055-front-elevation.jpeg?v=1547874112","\/\/saterdesign.com\/cdn\/shop\/products\/7055_RXC.jpeg?v=1547874112","\/\/saterdesign.com\/cdn\/shop\/products\/7055_Main_Floor_Large.jpeg?v=1547874112","\/\/saterdesign.com\/cdn\/shop\/products\/7055_U.gif?v=1547874112"],"featured_image":"\/\/saterdesign.com\/cdn\/shop\/products\/7055-front-elevation.jpeg?v=1547874112","options":["Select to Purchase"],"media":[{"alt":"Wheatfield Home Front Elevation-Plan #7055","id":28284682313,"position":1,"preview_image":{"aspect_ratio":1.845,"height":542,"width":1000,"src":"\/\/saterdesign.com\/cdn\/shop\/products\/7055-front-elevation.jpeg?v=1547874112"},"aspect_ratio":1.845,"height":542,"media_type":"image","src":"\/\/saterdesign.com\/cdn\/shop\/products\/7055-front-elevation.jpeg?v=1547874112","width":1000},{"alt":"Wheatfield-Rear Elevation-Plan #7055","id":28284715081,"position":2,"preview_image":{"aspect_ratio":1.754,"height":285,"width":500,"src":"\/\/saterdesign.com\/cdn\/shop\/products\/7055_RXC.jpeg?v=1547874112"},"aspect_ratio":1.754,"height":285,"media_type":"image","src":"\/\/saterdesign.com\/cdn\/shop\/products\/7055_RXC.jpeg?v=1547874112","width":500},{"alt":"Wheatfield-Main Level Floor Plan-#7055","id":28284747849,"position":3,"preview_image":{"aspect_ratio":0.922,"height":1041,"width":960,"src":"\/\/saterdesign.com\/cdn\/shop\/products\/7055_Main_Floor_Large.jpeg?v=1547874112"},"aspect_ratio":0.922,"height":1041,"media_type":"image","src":"\/\/saterdesign.com\/cdn\/shop\/products\/7055_Main_Floor_Large.jpeg?v=1547874112","width":960},{"alt":"Wheatfield Home - Upper Level Floor Plan - #7055_U","id":28284780617,"position":4,"preview_image":{"aspect_ratio":1.08,"height":436,"width":471,"src":"\/\/saterdesign.com\/cdn\/shop\/products\/7055_U.gif?v=1547874112"},"aspect_ratio":1.08,"height":436,"media_type":"image","src":"\/\/saterdesign.com\/cdn\/shop\/products\/7055_U.gif?v=1547874112","width":471}],"requires_selling_plan":false,"selling_plan_groups":[],"content":"\u003cp\u003eThis dream home, the Wheatfield, captures the comfort and style of the country with an unrivaled design. The circular porch, with a two-story turret and abundant rectangular windows, allow natural light to flood the geometric spaces of the Wheatfield and makes for a stunning first impression.\u003c\/p\u003e\n\u003cp\u003eA grand foyer features a radius staircase that graces the entry hall and helps define the wide-open interior. Inside, the staircase and open ceiling to the second floor reveal ample light, views and impressive details. A formal dining room connects via the butler's pantry to the gourmet island kitchen.\u003c\/p\u003e\n\u003cp\u003eThe large, open floor plan features a casual leisure room bordered in French doors that sports a corner built-in entertainment center large enough for your big screen TV. The breakfast nook has a wall of glass overlooking the side porch.\u003c\/p\u003e\n\u003cp\u003eThe main-level private master suite is entered through a separate foyer. The suite is composed of a spacious master bedroom with a spectacular tray ceiling. There are two walk-in closets, and a lavish master bath with separate vanities. At the far end of the master bath is an oval Whirlpool soaker tub looking out through a circular glass platform. There is a separate walk in shower and water closet for the toilet.\u003c\/p\u003e\n\u003cp\u003eTo the rear of the Wheatfield plan is the utility room. To the right is a two car garage and to the left of the utility room is a side porch with a built in grille.\u003c\/p\u003e\n\u003cp\u003eThe upstairs of the Wheatfield plan houses three additional bedrooms, two full baths, a computer center, linen closet, and wrapping loft. The Wheatfield house plan has 3096 square feet of living area with four bedrooms and three and 1\/2 bathrooms. The plan sits on a crawlspace foundation.\u003c\/p\u003e\n\u003cp\u003eAre you interested in having a \u003ca title=\"The Sater Group\" href=\"http:\/\/satergroup.com\" target=\"_blank\" rel=\"noopener noreferrer\"\u003ecustom home plan\u003c\/a\u003e designed just for you? Then please visit \u003ca title=\"The Sater Group\" href=\"http:\/\/satergroup.com\" target=\"_blank\" rel=\"noopener noreferrer\"\u003eSater Group, Inc.\u003c\/a\u003e and learn how we can design the home of your dreams.\u003c\/p\u003e"}