We Will Match All Plan Sale Prices

0

Your Cart is Empty

Photographed homes may have been modified from original plan.

6746-pdf

Fiddlers Creek House Plan

3893 sq. ft. Total Living  |   4 Bedrooms  |  3 Full Baths
Select to Purchase
Add to Wishlist

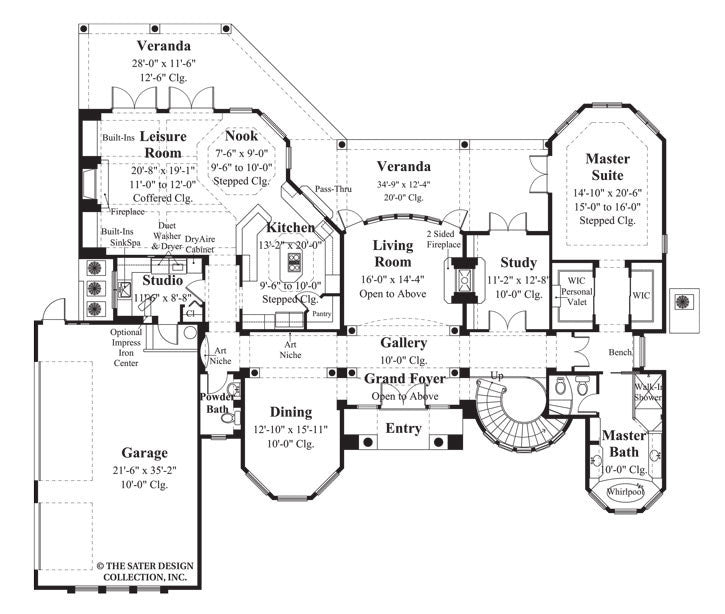
House Plan Specifications

  • Total Living:  3893 sq. ft.
  • 1st Floor:  2841 sq. ft.
  • 2nd Floor:  1052 sq. ft.
  • Bedrooms:  4
  • Bathrooms:  3
  • Half Baths:  1
  • Width of House:  85 ft. 0 in.
  • Depth of House:  76 ft. 2 in.
  • Foundation:  Stem Wall Slab
  • Exterior Wall:  Wood 2x6
  • Stories:  2
  • Roof Pitch:  8/12
  • Garage Bays:  3
  • Garage Load:  Side/Swing
  • Garage:  800 sq. ft.
  • Deck:  213 sq. ft.
  • Entry:  76 sq. ft.
  • Veranda:  935 sq. ft.
  • Total Area:  5917 sq. ft.
  • Building Height:  34 ft. 0 in.

House Plan Features

fiddlers creek-main level floor plan-#6746
fiddlers creek-upper floor plan- plan #6746

Customer Images

Photographed homes may have been modified from original plan.

What is in a Set of Plans?

Find out what we include in a set of house plans.

All Plans Need Engineering

Our plans do not include engineering for any specific site. Because of the great differences in geography and climate, each state, or municipality may have its own building regulations. Your plans will likely need site specific engineering in order to comply with those local requirements, therefore, we always recommend that you have the plans reviewed by a local structural engineer for compliance.

Want to Modify This Plan?

Click here to fill out a Modification Application.

We are experiencing an extremely high volume of modifications. We are working as fast as we can, however the time frame for modifications has been extended to a minimum of 10 weeks. At this time, we cannot guarantee any special time-frames. We apologize for the inconvenience.

Plan Options can increase the time it takes to process the house plans for delivery. If you have any questions, please contact us.

{"id":4265324295,"title":"Fiddlers Creek House Plan","handle":"fiddlers-creek-mediterranean-style-house-plan","description":"\u003cp\u003eThe Fiddlers Creek \u003ca href=\"https:\/\/saterdesign.com\/collections\/home-plans-house-plans\" title=\"home plan\"\u003ehome plan\u003c\/a\u003e is a beautiful Mediterranean style home. Through the grand foyer the two-story living room of the Fiddlers Creek features bay glass windows and custom doors. A double-sided fireplace is shared with the study. Across from the study, a glass turret surrounds the spiral staircase of the Fiddlers Creek.\u003c\/p\u003e\n\u003cp\u003eThe master suite is located on one side of the home which is accessed through double doors. It has bay style windows looking out to the rear of the house and French doors leading out to the Veranda. There are two large walk in closets down the hall that have ample storage space. The luxurious master bath of the Fiddlers Creek home plan has a separate water closet with bidet. There are double sinks and vanities, a large walk in shower, and whirlpool soaking tub with windows all around.\u003c\/p\u003e\n\u003cp\u003eOn the other side of the house is the kitchen. It has a corner walk in pantry, and a center island. One of the unique features of this home is the pass-through out to the pool area and veranda.\u003c\/p\u003e\n\u003cp\u003eThere is a breakfast nook just to the top of the kitchen area with circular windows also viewing the veranda. The leisure room is right next to the nook with double french doors leading out back to the pool and veranda. Against the far wall is a large fireplace and built ins on either side.\u003c\/p\u003e\n\u003cp\u003eUpstairs, there are two large bedrooms with a Jack and Jill shared bath. Across the catwalk is another full bedroom with full bath and walk in closet. High ceilings, oversized rooms and elegant facade make this home a timeless choice. The Fiddlers Creek Mediterranean style home plan is offered with 3893 sq. ft. of living area and has four bedrooms and three and 1\/2 bathrooms. It is designed with a slab\/stemwall foundation.\u003c\/p\u003e\n\u003cp\u003eAre you interested in having a \u003ca title=\"The Sater Group\" href=\"http:\/\/satergroup.com\" target=\"_blank\" rel=\"noopener noreferrer\"\u003ecustom home plan\u003c\/a\u003e designed just for you? Then please visit \u003ca title=\"The Sater Group\" href=\"http:\/\/satergroup.com\" target=\"_blank\" rel=\"noopener noreferrer\"\u003eSater Group, Inc.\u003c\/a\u003e and learn how we can design something just for you.\u003c\/p\u003e","published_at":"2016-02-02T14:51:00-05:00","created_at":"2016-02-02T14:51:37-05:00","vendor":"Sater Design","type":"Home Plans","tags":["930-119","Baths_3","Bedrooms_4","Exterior Wall_Wood 2x6","Feature_Fireplace","Feature_His and Hers Closets","Feature_Master Suite Main Floor","Feature_Office \/ Study","Feature_Walk-in Pantry","Foundation_Stem Wall Slab","Garage Bays_3","Garage Load_Side\/Swing","Half-Bath_1","Roof Pitch_8\/12","Stories_2"],"price":264700,"price_min":264700,"price_max":264700,"available":true,"price_varies":false,"compare_at_price":null,"compare_at_price_min":0,"compare_at_price_max":0,"compare_at_price_varies":false,"variants":[{"id":14593503559,"title":"Electronic PDF","option1":"Electronic PDF","option2":null,"option3":null,"sku":"6746-pdf","requires_shipping":false,"taxable":true,"featured_image":null,"available":true,"name":"Fiddlers Creek House Plan - Electronic PDF","public_title":"Electronic PDF","options":["Electronic PDF"],"price":264700,"weight":0,"compare_at_price":null,"inventory_quantity":0,"inventory_management":null,"inventory_policy":"deny","barcode":null,"requires_selling_plan":false,"selling_plan_allocations":[]}],"images":["\/\/saterdesign.com\/cdn\/shop\/products\/6746_FXC1.jpeg?v=1547873718","\/\/saterdesign.com\/cdn\/shop\/products\/6746_RXC.jpeg?v=1547873718","\/\/saterdesign.com\/cdn\/shop\/products\/6746_M.jpeg?v=1547873718","\/\/saterdesign.com\/cdn\/shop\/products\/6746_U.jpeg?v=1547873718"],"featured_image":"\/\/saterdesign.com\/cdn\/shop\/products\/6746_FXC1.jpeg?v=1547873718","options":["Select to Purchase"],"media":[{"alt":"Fiddlers Creek-Front Elevation- Plan #6746","id":28331475017,"position":1,"preview_image":{"aspect_ratio":1.845,"height":420,"width":775,"src":"\/\/saterdesign.com\/cdn\/shop\/products\/6746_FXC1.jpeg?v=1547873718"},"aspect_ratio":1.845,"height":420,"media_type":"image","src":"\/\/saterdesign.com\/cdn\/shop\/products\/6746_FXC1.jpeg?v=1547873718","width":775},{"alt":"Fiddlers Creek-Rear Elevation- Plan #6746","id":28331507785,"position":2,"preview_image":{"aspect_ratio":1.266,"height":474,"width":600,"src":"\/\/saterdesign.com\/cdn\/shop\/products\/6746_RXC.jpeg?v=1547873718"},"aspect_ratio":1.266,"height":474,"media_type":"image","src":"\/\/saterdesign.com\/cdn\/shop\/products\/6746_RXC.jpeg?v=1547873718","width":600},{"alt":"Fiddlers Creek-Main Level Floor Plan-#6746","id":28331540553,"position":3,"preview_image":{"aspect_ratio":1.181,"height":614,"width":725,"src":"\/\/saterdesign.com\/cdn\/shop\/products\/6746_M.jpeg?v=1547873718"},"aspect_ratio":1.181,"height":614,"media_type":"image","src":"\/\/saterdesign.com\/cdn\/shop\/products\/6746_M.jpeg?v=1547873718","width":725},{"alt":"Fiddlers Creek-Upper Floor Plan- Plan #6746","id":28331573321,"position":4,"preview_image":{"aspect_ratio":1.014,"height":641,"width":650,"src":"\/\/saterdesign.com\/cdn\/shop\/products\/6746_U.jpeg?v=1547873718"},"aspect_ratio":1.014,"height":641,"media_type":"image","src":"\/\/saterdesign.com\/cdn\/shop\/products\/6746_U.jpeg?v=1547873718","width":650}],"requires_selling_plan":false,"selling_plan_groups":[],"content":"\u003cp\u003eThe Fiddlers Creek \u003ca href=\"https:\/\/saterdesign.com\/collections\/home-plans-house-plans\" title=\"home plan\"\u003ehome plan\u003c\/a\u003e is a beautiful Mediterranean style home. Through the grand foyer the two-story living room of the Fiddlers Creek features bay glass windows and custom doors. A double-sided fireplace is shared with the study. Across from the study, a glass turret surrounds the spiral staircase of the Fiddlers Creek.\u003c\/p\u003e\n\u003cp\u003eThe master suite is located on one side of the home which is accessed through double doors. It has bay style windows looking out to the rear of the house and French doors leading out to the Veranda. There are two large walk in closets down the hall that have ample storage space. The luxurious master bath of the Fiddlers Creek home plan has a separate water closet with bidet. There are double sinks and vanities, a large walk in shower, and whirlpool soaking tub with windows all around.\u003c\/p\u003e\n\u003cp\u003eOn the other side of the house is the kitchen. It has a corner walk in pantry, and a center island. One of the unique features of this home is the pass-through out to the pool area and veranda.\u003c\/p\u003e\n\u003cp\u003eThere is a breakfast nook just to the top of the kitchen area with circular windows also viewing the veranda. The leisure room is right next to the nook with double french doors leading out back to the pool and veranda. Against the far wall is a large fireplace and built ins on either side.\u003c\/p\u003e\n\u003cp\u003eUpstairs, there are two large bedrooms with a Jack and Jill shared bath. Across the catwalk is another full bedroom with full bath and walk in closet. High ceilings, oversized rooms and elegant facade make this home a timeless choice. The Fiddlers Creek Mediterranean style home plan is offered with 3893 sq. ft. of living area and has four bedrooms and three and 1\/2 bathrooms. It is designed with a slab\/stemwall foundation.\u003c\/p\u003e\n\u003cp\u003eAre you interested in having a \u003ca title=\"The Sater Group\" href=\"http:\/\/satergroup.com\" target=\"_blank\" rel=\"noopener noreferrer\"\u003ecustom home plan\u003c\/a\u003e designed just for you? Then please visit \u003ca title=\"The Sater Group\" href=\"http:\/\/satergroup.com\" target=\"_blank\" rel=\"noopener noreferrer\"\u003eSater Group, Inc.\u003c\/a\u003e and learn how we can design something just for you.\u003c\/p\u003e"}